Questo esercizio mostra come utilizzare filtri bitonali per migliorare l'aspetto del disegno al tratto raster e utilizzare gli strumenti di modifica raster per rimuovere macchie indesiderate da un'immagine.
In questo esercizio viene migliorato un disegno al tratto esistente applicando un filtro di ispessimento di linea ad una porzione di esso. Inoltre, verrà utilizzato lo strumento raster di rimozione per eliminare pixel raster indesiderati dal disegno.
Prima di svolgere questo esercizio, accertarsi che le opzioni del AutoCAD Raster Design toolset siano impostate come descritto nell’esercizio Esercizio A1: impostazione delle opzioni del AutoCAD Raster Design Toolset.
Correggere le linee seghettate
gruppo Viste con nome
Gestione viste
. Espandere quindi il nodo Viste modello e selezionare la vista denominata TU-pad, fare clic su Imposta corrente e fare clic su OK.
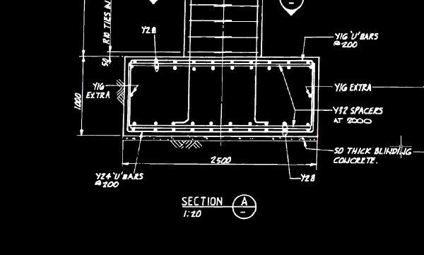
Alcune linee raster sono molto sottili. Alcune linee, quali quelle di quota, contengono delle distanze a causa della scarsa qualità delle immagini digitalizzate.
gruppo Modifica
menu a discesa Elabora immagine
Filtri bitonali
. Premere quindi INVIO per selezionare l'intera immagine, come indicato nella riga di comando.
Dopo aver ispessito le linee due volte, le linee parallele che presentano un spaziatura minima vengono unite in un'unica linea.

Annullare il comando Ispessisci dei filtri bitonali
gruppo Modifica
menu a discesa Elabora immagine
Filtri bitonali
. Premere quindi INVIO per selezionare l'intera immagine.
Con un solo passaggio, le distanze tra le linee di quota vengono corrette, ma le linee che presentano una spaziatura minima tra di loro rimangono separate. Di solito sono necessari più tentativi per ottenere risultati ottimali con i filtri.

gruppo Viste con nome
Gestione viste
. Espandere quindi il nodo Viste modello e selezionare la vista denominata TU_extents, fare clic su Imposta corrente e fare clic su OK.
Nel AutoCAD Raster Design toolset il filtro di ispessimento è stato applicato all'intera immagine.
Rimuovere le macchie
gruppo Viste con nome
Gestione viste
. Espandere quindi il nodo Viste modello e selezionare la vista denominata TU_spots, fare clic su Imposta corrente e fare clic su OK.
Questa area dell'immagine contiene macchie (difetti di digitalizzazione) dovuti a piccoli fori nel disegno originale.
gruppo Modifica
menu a discesa Rimuovi
Regione circolare
.