図面を複数の尺度で出力する必要が生じることや、図面に複数の尺度を使用するビューポートが含まれていることはありますか?
効率的に設計するには、少々時間と計画が必要です。作業中の図面が大きく複雑になるにつれて、断面図ビューと立面図ビューを追加し、接合部や基礎の詳細を描画する必要が生じる可能性が高くなります。これらの設計要素は、再利用可能なコンテンツを使用することが多く、図面に基づいて異なる尺度で表示する必要があります。
注釈オブジェクトを異なる尺度で表示するには、次の 3 つの方法があります。
画層は、複数の尺度で表示される注釈オブジェクトの表示/非表示を管理する共通の方法です。たとえば、通常、A-DETL-DIMS 画層はすべての寸法に使用されます。複数の尺度で寸法を記入する必要がある場合は、画層名の末尾に尺度係数値を追加します。たとえば、1/2"=1'-0" および 1/4"=1'-0" の場合は、A-DETL-DIMS-24 および A-DETL-DIMS-48 です。
複数の画層を定義した場合、画層の表示/非表示をコントロールして、ビューポートの尺度に対応する寸法を表示します。たとえば、ビューポートの尺度が 1/2"=1'-0" (1/24)の場合、画層 A-DETL-DIMS-24 をフリーズ解除し、画層 A-DETL-DIMS-48 をフリーズします。
前の図では、A-DETL-DIMS-48 画層は左側でフリーズ解除され、A-DETL-DIMS-24 画層は右側でフリーズ解除されています。また、どちらの画層も中央でフリーズ解除されています。
異尺度対応オブジェクとは、異なる尺度で 1 つまたは複数の表示方法を持つ注釈です。ビューポート内の最終的なサイズと表示/非表示をコントロールするために、割り当てられた画層の高さ、尺度、フリーズ/フリーズ解除を変更した注釈オブジェクトとは異なります。異尺度対応スタイルは、異尺度対応でないスタイルに似ていますが、注釈オブジェクトの最終的な高さや尺度の計算方法をコントロールする異尺度対応オブジェクトの作成を管理する点が異なります。
次の注釈オブジェクトを異尺度対応にすることができます。
次に、異尺度対応オブジェクトを 2 つの異なる尺度(1/4"=1'-0" と 1/2"=1'-0")で使用するモデルの例を示します。
モデルがビューポートに表示されている場合、ビューポートの尺度によって、異尺度対応オブジェクトのどの表示方法が表示されるかがコントロールされます。ビューポートの尺度がビューポート内の異尺度対応オブジェクトの尺度と一致しない場合、それらの異尺度対応オブジェクトは表示されません。前の図では、文字、寸法、マルチ引出線オブジェクトに 1/4"=1'-0" および 1/2"=1'-0" の尺度が割り当てられています。そのため、すべての注釈が同時に表示されたり、ビューポートに表示されるわけではありません。最初の 2 つのビューポートには異尺度対応オブジェクトの尺度に一致する尺度が割り当てられますが、3 番目のビューポートには異なる尺度が割り当てられます。
このトピックの演習を最大限に活用するには、データセットをダウンロードする必要があります。データセットには、デモンストレーション対象のワークフローや機能の学習を支援するカスタマイズされた図面ファイルが含まれています。
ダウンロード: 次のセクションの演習で使用するサンプル ファイル。
異尺度対応オブジェクトを作成および修正する方法を学習する前に、ビューポートで異尺度対応オブジェクトがどのように機能するかを把握しましょう。この実習では、サンプル図面に既存のビューポートを入力し、ビューポートの尺度を変更します。この場合、注釈尺度も変更されます。尺度を変更すると、図面内のオブジェクトが尺度で表示され、尺度に一致する各異尺度対応オブジェクトの表示のみが可能になります。新しい尺度に一致しない各異尺度対応オブジェクトは、非表示になります。
データセットのダウンロード元については、このトピックの前の方にある「演習の準備」セクションを参照してください。


これで、ビューポートの境界が太くなり、モデル空間がアクティブになります。
このバッジのカーソルは、注釈が異尺度対応であることを示します。

ビューポートは、尺度を変更する前に、ロック解除をする必要があります。


ビューポート尺度が変更された後、ビューが縮小ズームされ、表示されていた注釈が変更されていることに注目してください。注釈尺度が 1/4"=1'-0" の異尺度対応オブジェクトは表示され、注釈尺度が 1/2"=1'-0" の異尺度対応オブジェクトは非表示になります。

ビューポートの以前の尺度が、注釈尺度 1/2"=1'-0" の異尺度対応オブジェクトの表示/非表示に合わせて復元されます。
この演習では、ビューポート内の注釈の表示/非表示、高さ/尺度をコントロールするために、異尺度対応オブジェクトをどのように使用できるかを確認しました。次のセクションでは、異尺度対応の文字を作成し、その表示を STAIR DETAIL 1 および STAIR SECTION 1 ビューポートでコントロールする方法を学習します。
異尺度対応テキスト、寸法、ハッチングなどを作成するワークフローはすべて似ていますが、この記事では異尺度対応マルチ テキストの作成のみにフォーカスします。異尺度対応および非異尺度対応(通常)文字の作成は、異尺度対応の文字スタイルの使用と、作成する文字の最終的な高さを除けば、似ています。文字の高さは、文字が表示される尺度に基づいて計算されます。
次に、非異尺度対応または異尺度対応文字を使用するよう選択した場合の、モデル空間における配置に対する文字の高さの計算方法を説明します。
文字の高さは手動で計算します。たとえば、1/16" (0.0625)の用紙上の文字の高さをビューポートに表示し、1/2"=1'-0" (24の係数)に尺度を設定する場合、1/2"の高さの文字を作成します。
0.0625 x 24 = 1.5
AutoCAD は、指定された用紙上の文字の高さと割り当てられた注釈尺度に基づいて、必要な高さで文字を自動的に計算して表示します。
次の手順では、異尺度対応マルチ テキスト(MText)を作成する方法を説明します。
データセットのダウンロード元については、このトピックの前の方にある「演習の準備」セクションを参照してください。









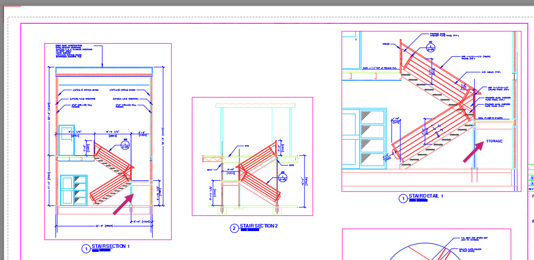
尺度 1/2"=1'-0" が割り当てられたため、STAIR DETAIL 1 というラベルの付いたビューポートに新しいマルチ テキスト オブジェクトが表示されます。1/4"=1'-0" の尺度が割り当てられるため、文字は STAIR SECTION 1 ビューポートに表示されません。

次のセクションでは、異尺度対応オブジェクトに注釈尺度を追加する方法について学習します。注釈尺度を使用すると、STAIR SECTION 1 ビューポートに 1/4"=1'-0" の尺度で文字を表示することもできます。
異尺度対応オブジェクトを作成したら、オブジェクトに注釈尺度を追加したり、不要になった尺度を削除したりすることができます。新しい注釈尺度は、モデル空間およびレイアウト上のビューポートでのオブジェクトの表示方法に影響します。
次の手順では、前の演習で作成した異尺度対応マルチテキスト オブジェクトに注釈尺度を追加する方法を説明します:



これで、STAIR SECTION 1 ビューポートにマルチ テキスト オブジェクトが表示され、ビューポートの尺度 1/4"=1'-0" に基づいた用紙上の文字の高さ 1/16" で表示されています。

異尺度対応オブジェクトは他のオブジェクトと同様に画層に配置されますが、モデル空間の現在の注釈尺度またはレイアウトのビューポートを使用して、異尺度対応オブジェクトを独自の画層に配置し、その表示/非表示をコントロールすることをお勧めします。ステータス バーの[注釈オブジェクトの表示]ボタン( 検索)は、割り当てられている尺度に関係なく、すべての異尺度対応オブジェクトを表示するか、現在の注釈尺度に一致する異尺度対応オブジェクトのみを表示するかをコントロールします。
次の手順では、[注釈オブジェクトの表示]ボタンの使用方法を説明します。
すべての注釈オブジェクトが消えていることを確認します。

注釈尺度が一致する異尺度対応オブジェクトのみが図面に表示されます。
すべての異尺度対応オブジェクトは、現在の注釈尺度に関係なく、再度表示されます。
異尺度対応オブジェクトに注釈尺度を追加すると、そのオブジェクトの新しい表示方法が作成され、保持されます。異尺度対応オブジェクトを選択すると、これらの各表示方法を確認できます。たとえば、次の図は、1/4"=1'-0" および 1/2"=1'-0" の注釈尺度が割り当てられたマルチ引出線を示しています。図面の現在の注釈尺度は 1/4"=1'-0" に設定されています。
異尺度対応オブジェクトを選択したときにすべての表示方法を確認できますが、グリップ編集を使用して修正できるのは、現在の注釈尺度に一致する表現のみです。MOVE[移動]や SCALE[尺度変更]などの標準的な編集コマンドは、異尺度対応オブジェクトの表現の修正には使用できません。
異尺度対応オブジェクトのすべての表現をリセットするには:
異尺度対応の文字スタイルは、異尺度対応の文字を作成する際に必要ありませんが、異尺度対応でない文字スタイルと同様に、異尺度対応でない文字スタイルを簡単に処理できるようにするのに役立ちます。異尺度対応と非異尺度対応の文字スタイルの主な違いは、[異尺度対応]プロパティです。[異尺度対応]プロパティが有効で、スタイルが現在のスタイルの場合、作成される文字はすべて異尺度対応です。[用紙の文字の高さ]プロパティは文字の最終的な高さを指定しますが、[文字の方向をレイアウトに揃える]プロパティは文字が表示されるレイアウトとビューポートに向きを合わせるかどうかを定義します。

図面内の既存の注釈オブジェクトとハッチング オブジェクトは、いくつかの手順で異尺度対応にすることができます。これは、注釈オブジェクトやハッチング オブジェクトを再作成せずに、既存のモデルや詳細の注釈を作成する場合に便利です。
次の手順では、非異尺度対応オブジェクトを異尺度対応にする方法の概要を説明します。

前に使用したサンプル図面には、各ビューポートの尺度に一致する SECTIONS AND DETAILS レイアウトの各ビューポートに対して注釈尺度が既に設定されています。新しいビューポートを作成してその尺度を設定すると、注釈尺度はビューポートの尺度と一致するように自動的に設定されます。2 つの尺度が一致しない場合、[ビューポート尺度同期]ボタンをクリックして、注釈尺度をビューポートの尺度に一致させることができます。2 つの尺度が一致すると、[ビューポート尺度同期]ボタンは青くなります。ビューポートの作成と尺度の詳細は、「お試しください: レイアウト ビューポートの尺度を事前に設定する」を参照してください。

断面図ビューまたは立面図ビューで作業し、複数の尺度で詳細を行う場合は、異尺度対応オブジェクトと注釈尺度により、設計に注釈を付けやすくなります。これにより、ビューポートに割り当てられた尺度に関係なく、注釈を正しいサイズで表示することがどれほど簡単であるかを説明しています。
図面内の異尺度対応オブジェクトと注釈尺度に関連するコマンドとシステム変数を次に示します。
| コマンド | 説明 |
|---|---|
| ANNORESET[尺度表現位置リセット] | 選択されている異尺度対応オブジェクトのすべての代替尺度表現の位置をリセットします。 |
| ANNOUPDATE[異尺度対応オブジェクト更新] | 既存の異尺度対応オブジェクトをそのスタイルの現在のプロパティに一致するように更新します。 |
| OBJECTSCALE[異尺度対応オブジェクトの尺度] | 異尺度対応オブジェクトが対応する尺度を追加または削除します。 |
| SCALELISTEDIT[尺度リスト編集] | レイアウト ビューポート、ページ レイアウト、および印刷で使用できる尺度のリストをコントロールします。 |
| システム変数 | 説 明 | 既定値 | 保存場所 |
|---|---|---|---|
| ANNOALLVISIBLE | 現在の注釈尺度に対応しない異尺度対応オブジェクトの表示/非表示を切り替えます。 | 1 | 図面 |
| ANNOAUTOSCALE | 注釈尺度が変更された場合に、その注釈尺度に対応するように異尺度対応オブジェクトを更新します。 | -4 | レジストリ |
| ANNOSCALEZOOM | ペーパー空間ビューポートでのマウス ホイール ズームを、特定のズーム尺度によってコントロールするか、ビューポート尺度に依存せずにコントロールする(従来の動作)かを決定します。 | 0 | レジストリ |
| ANNOTATIVEDWG | 図面を他の図面に挿入した場合に、異尺度対応ブロックとして動作させるかどうかを指定します。 | 0 | 図面 |
| CANNOSCALE | 現在の空間で現在の注釈尺度の名前を設定します。 | 1:1 | 図面 |
| CANNOSCALEVALUE | 現在の注釈尺度の値を表示します。 | 1.0000 | 図面 |
| DIMANNO[異尺度対応寸法] | 現在の寸法スタイルが異尺度対応であるかどうかを示します。 | 0 | 図面 |
| HPANNOTATIVE | このセッションで新しく作成するハッチング パターンを自動調整にするかどうかをコントロールします。 | 0 | 保存されません |
| SAVEFIDELITY | AutoCAD 2007 以前で表示される異尺度対応オブジェクトの表示の正確性をコントロールします。 | 1 | レジストリ |
| SELECTIONANNODISPLAY | 異尺度対応オブジェクトを選択したときに、別の尺度表現を一時的に暗く表示するかどうかをコントロールします。 | 1 | レジストリ |