이 연습에서는 하단 레벨의 메자닌에 계단을 추가한 다음 메자닌에서 난간을 수정하여 모델의 내부를 완성합니다.
|
범주
|
새 사용자
|
|
소요 시간
|
15분
|
|
사용되는 튜토리얼 파일
|
GSG_09_stairs_railings.rvt
|
|
시작하기 전에 GSG_09_stairs_railings.rvt 파일을 다운로드합니다. 튜토리얼용 연습 파일을 아직 다운로드하지 않은 경우 이 zip 파일을 다운로드합니다.
목표
- 상점 바닥과 메자닌 사이에 계단을 작성합니다.
- 메자닌을 포함하도록 계단 난간을 수정합니다.
- 난간 유형을 파이프 난간으로 변경합니다.
비디오 보기
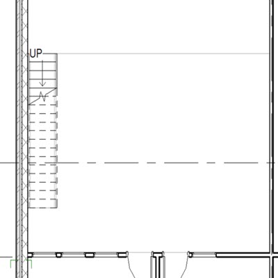
계단 작성
- GSG_09_stairs_railings.rvt 프로젝트를 엽니다.
- 01 - 상점 바닥 평면도가 열려 있는지 확인합니다.
- 건축 탭
순환 패널
(계단)을 클릭합니다.
- 특성 팔레트의 구속조건에서 다음을 수행합니다.
- 베이스 레벨은 01 - 상점 바닥을 선택합니다.
- 상단 레벨은 메자닌을 선택합니다.
- 옵션 막대에서 위치선을 계단진행:왼쪽으로 설정합니다.
- 상점 룸에서 메자닌 언더레이 코너를 클릭하여 계단진행을 시작합니다.
- 툴팁에 챌판이 남아 있지 않다고 표시될 때까지 커서를 아래쪽으로 이동한 후 계단 끝점을 클릭하여 지정합니다.
- 모드 패널에서
(편집 모드 완료)를 클릭합니다.
난간 유형 수정
- 신속 접근 도구막대에서
(기본 3D 뷰)를 클릭합니다.
- 평지붕을 선택한 후 뷰 조절 막대에서
(임시 숨기기/분리)를 사용하여 요소 숨기기를 선택합니다.
- 벽 주위에 있는 계단의 면에서 난간을 선택합니다.
- 유형 선택기에서 900mm 파이프 벽을 선택합니다.
- 경고 대화상자에서 유형 삭제를 클릭합니다.
- 계단의 다른 면에서 난간을 선택합니다.
- 유형 선택기에서 900mm 파이프를 선택합니다.
10부: 뷰 작성