Создание таблицы спецификации двумерного чертежа.
Лента: Вкладка «Ортогональный вид»
«Настройка таблицы» 
Ввод команды:
plantorthoplacebom Отображаются следующие запросы.
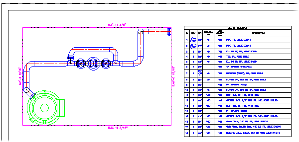
Выберите видовой экран: выберите видовой экран двумерного чертежа.
Выберите таблицу для размещения [Спецификация/Оборудование/Штуцера/сТаль/Катушка] <Спецификация>: укажите таблицу спецификации, которую требуется создать в двумерном чертеже.
Укажите первый угол: укажите верхний левый угол таблицы спецификации двумерного чертежа.
Укажите второй угол: укажите ширину таблицы. Заданная высота не учитывается.
