В этом упражнении выполняется добавление размеров в модель здания с целью определения размера проекции главного здания.
|
Сначала скачайте файл GSG_11_dimensions.rvt. Скачайте этот файл ZIP (если файлы упражнений для учебных пособий еще не загружены).
Цели
панель «Размеры»
(«Параллельные»).

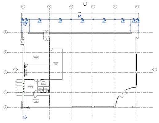
панель «Размеры»
(«Параллельные»).

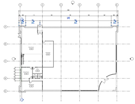
панель «Размеры»
(«Параллельные»).
