您可以创建 Plant 3D 模型的自定义正交视图,并将其放置在二维图形中。
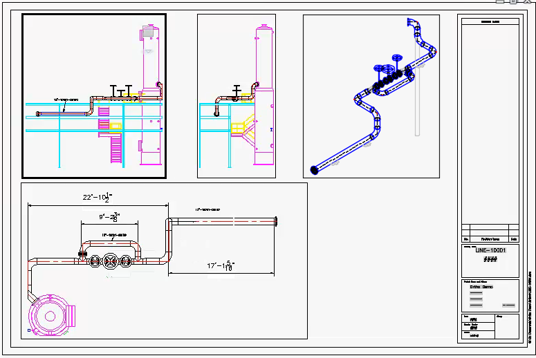
正交图形为 DWG 文件,且每个文件都可以包含多个具有从 Plant 3D 模型中提取的数据的正交视图。如果源模型更改,可以更新正交图形以反映这些更改。
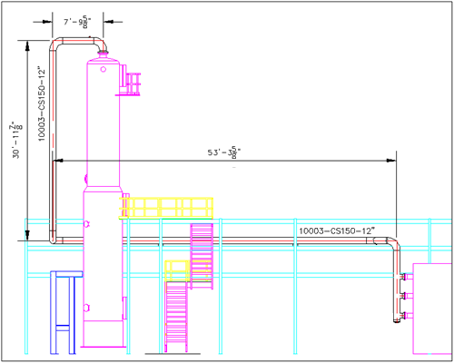
正交图形可显示 Plant 3D 模型中管道、阀、设备和结构钢的二维视图。图形可以具有注释、标注、匹配线(仅限平面视图)、管道间隙,并且可以显示或隐藏线和对象。下面是显示单个视图的示例。


可以使用标题栏为正交图形设置自定义样板,也可以使用默认样板。
包含对其他图形参照的项目图形可用于正交图形。也可以使用非项目外部参照,但它们仅显示为图形。