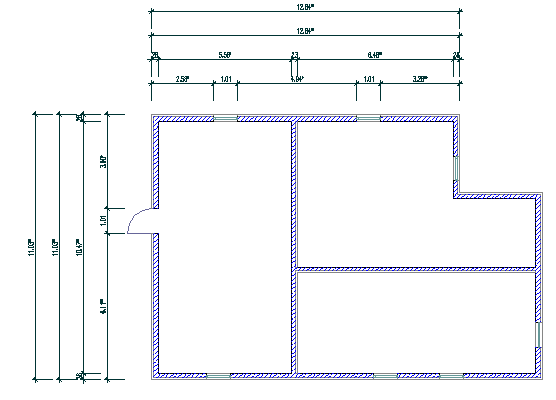
Las cotas AEC asociativas son objetos de anotación basados en estilos que se actualizan automáticamente cuando el objeto asociado se modifica. El estilo de cota AEC define los puntos de cota que determinan las medidas que se muestran en cada objeto para el que se puede usar el estilo al acotar.
En el siguiente ejemplo, los puntos acotados en el estilo son las longitudes de muros, anchuras de huecos e intersecciones de muros. Si una puerta se ensancha, las cotas se actualizan para reflejar las nuevas medidas.

Puede definir estilos para tipos de objeto específicos. Por ejemplo, un estilo de cota AEC puede especificar que, para los muros, se mostrarán las cotas de longitud, la anchura máxima de huecos para ventanas en muros y las intersecciones de muros. Otro estilo de cota AEC para elementos de masa puede especificar los centros y bordes de elementos como puntos de cota.
También puede definir diferentes puntos de cota para las distintas vistas. Por ejemplo, en Plan Low Detail, puede acotar solamente los bordes exteriores de un edificio; sin embargo, en Plan High Detail, puede acotar también todas las longitudes y huecos de los muros.
En el estilo de cotas AEC, puede definir hasta diez cadenas de cotas con diferentes puntos. Por ejemplo, la primera cadena puede acotar longitudes de muros y huecos; y la segunda, componentes estructurales de muros con varios componentes.
En el estilo de cotas AEC, también se puede definir si se utilizarán superíndices en las cotas y si la longitud de línea de referencia es fija o variable.