モデル ドキュメント機能は、AutoCAD および Inventor 3D モデルから自動調整 2D 図面を生成し、オートデスク製品以外の製品で作成された一部の 3D モデルから非自動調整 2D 図面を生成します。
モデル ドキュメントの 2D 図面の基本的な構成要素は図面ビュー オブジェクトです。

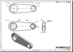
図面ビューは、3D モデルの 2D 投影を含む矩形のオブジェクトです。図面ビューの境界は、ビューを選択したときや、図面ビュー上にカーソルを移動したときにのみ表示されます。図面ビューの境界は、現在の画層上にあっても印刷はできません。ビュー ジオメトリは常に表示され、定義済みの画層セットに作成されます。ビュー ジオメトリは元の 3D モデルに関連付けられているため、ビュー ジオメトリを選択して修正することはできません。ただし、ビュー ジオメトリが描画されている画層のプロパティを修正することで、ビュー ジオメトリの外観を変更することができます。
図面に配置する最初のビューが、ベース ビューです。ベース ビューは、3D モデルから直接生成された図面ビューです。

ベース ビューをレイアウトに配置したら、そのベース ビューから投影ビューを生成できます。ベース ビューとは異なり、投影ビューは 3D モデルから直接は生成されません。代わりに、ベース ビュー(あるいは、既にレイアウトにある別の投影ビュー)から生成されます。投影ビューでは、生成元のビューとの親子関係が維持されます。子ビューの設定は、親から読み込まれます。必要に応じて、これらの設定を変更することができます。
また、既存の図面ビューから断面ビューや詳細ビューを生成することもできます。断面ビューは、モデルの内部の詳細を表示する投影ビューです。詳細ビューは、モデルの選択部分を拡大表示する投影ビューです。
ビューを作成したら、注記、寸法、記号などの注釈をビュー ジオメトリにアタッチできます。

図面ビュー オブジェクトは、すべての複写またはコピー コマンドで選択できませんが、他のオブジェクトと同様に、移動、回転、削除することができます。
AutoCAD の新しいバージョンで作成された図面ビューを、AutoCAD の旧バージョンで編集することはできません。たとえば、AutoCAD 2014 で作成された図面ビューは、AutoCAD 2013 で編集することはできません。たとえ両方のバージョンの AutoCAD で、同じ(AutoCAD 2013)ファイル形式を使用して保存しても編集することはできません。その図面ファイルの図面ビューのプロパティを編集したり、新しい図面ビューを追加したり、図面ビューを更新することはできません。