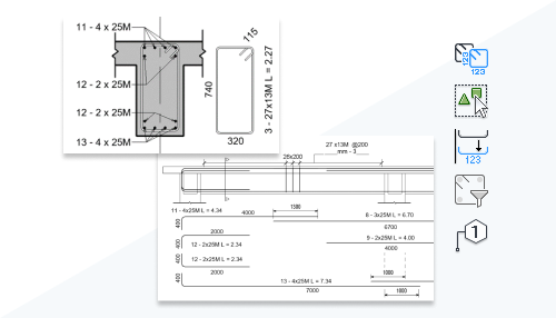
配筋図面での鉄筋の曲げの詳細

配筋図面に曲げの詳細を追加して、鉄筋の曲げおよび取り付けの正確な手順を作成します。

リボンの専用ツールを使用して、平面図、断面図、立面図ビューで、ビューのトリミング領域の内側または外側に曲げの詳細を配置できます。配筋図面のニーズを適切に満たすには、鉄筋の曲げの詳細のパラメータを修正します。



この機能は、Ideas フォーラムでお客様から推薦により支持を受けたものであり、製品ロードマップに記載されています。

配筋図面での鉄筋の曲げの詳細」を参照してください。