Często przygotowujesz rysunki w wielu skalach lub korzystasz z rysunków zawierających rzutnie o wielu skalach?
Wydajne projektowanie może wymagać nieco czasu i planowania. W miarę tego, jak opracowywane rysunki stają się coraz większe i coraz bardziej złożone, konieczne staje się rysowanie większej liczby przekrojów i widoków wysokości nad płaszczyzną wraz ze szczegółami połączeń i fundamentów. W tych elementach projektu często wykorzystuje się zawartość wielokrotnego użytku i projekt może wymagać wyświetlania ich w różnych skalach na podstawie rysunku.
Istnieją trzy różne metody wyświetlania obiektów opisów w różnych skalach:
Warstwy są powszechnie stosowanym sposobem zarządzania widocznością obiektów opisów wyświetlanych w wielu skalach. Na przykład warstwy A-DETL-DIMS można zwykle używać dla wszystkich wymiarów. Jeśli potrzebne są wymiary w wielu skalach, należy dodać wartość współczynnika skali na końcu nazwy warstwy, np. A-DETL-DIMS-24 i A-DETL-DIMS-48 odpowiednio dla 1/2"=1’-0" i 1/4"=1’-0".
Po zdefiniowaniu wielu warstw można sterować widocznością warstw, aby wyświetlać wymiary odpowiadające skali rzutni. Jeśli na przykład rzutnia ma skalę 1/2"=1'-0" (1/24), należy odblokować warstwę A-DETL-DIMS-24 i zablokować warstwę A-DETL-DIMS-48.
Na poprzedniej ilustracji warstwa A-DETL-DIMS-48 jest odblokowana po lewej stronie, a warstwa A-DETL-DIMS-24 jest odblokowana po prawej stronie. Obie warstwy są odblokowane w środku.
Obiekty opisowe są opisami z jedną lub większą liczbą reprezentacji w różnych skalach i nie są oddzielnymi obiektami opisów, których wysokość/skalę się zmienia lub których przypisaną warstwę się blokuje/odblokowuje w celu sterowania wynikowymi rozmiarem i widocznością w rzutni. Style opisowe są podobne do nieopisowych z tą różnicą, że zarządzają tworzeniem obiektów opisowych, które sterują sposobem obliczania końcowej wysokości/skali obiektu opisu.
Następujące obiekty opisów mogą być obiektami opisowymi:
Oto przykład modelu z obiektami opisowymi w dwóch różnych skalach: 1/4"=1'-0" i 1/2"=1'-0".
Gdy model jest wyświetlany w rzutni, skala rzutni określa, która reprezentacja obiektu opisowego jest wyświetlana. Jeśli skala rzutni jest niezgodna ze skalą obiektów opisowych w rzutni, wówczas te obiekty opisowe nie są wyświetlane. Na poprzedniej ilustracji obiektom tekstu, wymiarów i wielolinii odniesienia przypisano skale 1/4"=1'-0" i 1/2"=1'-0". Dlatego nie wszystkie opisy są wyświetlane jednocześnie lub razem w rzutni: pierwsze dwie rzutnie mają przypisane skale zgodne ze skalami tych obiektów opisowych, natomiast trzecia rzutnia ma inną skalę.
Aby jak najlepiej wykorzystać ćwiczenia w tym temacie, należy pobrać zestaw danych. Zestaw danych zawiera wyselekcjonowane pliki rysunków, które pomagają w nauce prezentowanych procesów roboczych lub funkcji.
Pobierz: przykładowe pliki wykorzystywane w ćwiczeniach w poniższych sekcjach.
Zanim dowiesz się, jak tworzyć i modyfikować obiekty opisowe, zapoznaj się z działaniem obiektów opisowych w rzutniach. W tym ćwiczeniu należy wprowadzić istniejącą rzutnię na rysunku przykładowym i zmienić jej skalę, co spowoduje zmianę także skali opisu. Po zmianie skali obiekty na rysunku są wyświetlane w skali i widoczne są tylko reprezentacje poszczególnych obiektów opisowych zgodnych z daną skalą. Reprezentacje wszystkich obiektów opisowych niezgodnych z nową skalą stają się niewidoczne.
W sekcji Przygotowanie do ćwiczeń wcześniej w tym temacie podano, skąd można pobrać zestaw danych.


Obramowanie rzutni powinno być teraz grubsze, odzwierciedlając to, że obszar modelu jest teraz aktywny.
Ten wskaźnik informuje, że opis ma postać opisową.

Aby można było zmienić skalę rzutni, należy ją odblokować.


Zwróć uwagę, że po zmianie skali rzutni widok jest pomniejszony i widoczny opis uległ zmianie. Obiekty opisowe ze skalą opisu 1/4"=1'-0" są teraz widoczne, natomiast obiekty ze skalą opisu 1/2"=1'-0" są niewidoczne.

Zostanie przywrócona poprzednia skala rzutni wraz z widocznością obiektów opisowych ze skalą opisu 1/2"=1'-0".
W tym ćwiczeniu pokazano, jak za pomocą obiektów opisowych można sterować widocznością i wysokością/skalą opisu w rzutni. Z następnych sekcji dowiesz się, jak utworzyć tekst opisowy i sterować jego widocznością w rzutni STAIR DETAIL 1 oraz STAIR SECTION 1.
Chociaż procesy tworzenia tekstu opisowego, wymiarów, kreskowania itp. są bardzo podobne, ten artykuł dotyczy tylko tworzenia wielowierszowego tekstu opisowego. Tworzenie tekstu opisowego i nieopisowego (zwykłego) wygląda podobnie — z wyjątkiem części dotyczących używania stylu tekstu opisowego i końcowej wysokości tworzonego tekstu. Wysokość tekstu jest obliczana na podstawie skali, przy której tekst będzie wyświetlany.
Poniżej wyjaśniono sposób obliczania wysokości tekstu na potrzeby umieszczenia go w obszarze modelu na podstawie wyboru użycia tekstu nieopisowego lub opisowego:
Wysokość tekstu jest obliczana ręcznie. Aby na przykład wyświetlić tekst z wysokością tekstu na papierze równą 1/16" (0,0625) w rzutni o skali 1/2"=1'-0" (współczynnik 24), należy utworzyć tekst o wysokości 1 1/2".
0.0625 x 24 = 1.5
Program AutoCAD automatycznie oblicza i wyświetla tekst o wymaganej wysokości na podstawie podanej wysokości tekstu na papierze i przypisanej skali opisu.
W poniższych punktach opisano sposób tworzenia opisowego tekstu wielowierszowego (WTekst):
W sekcji Przygotowanie do ćwiczeń wcześniej w tym temacie podano, skąd można pobrać zestaw danych.









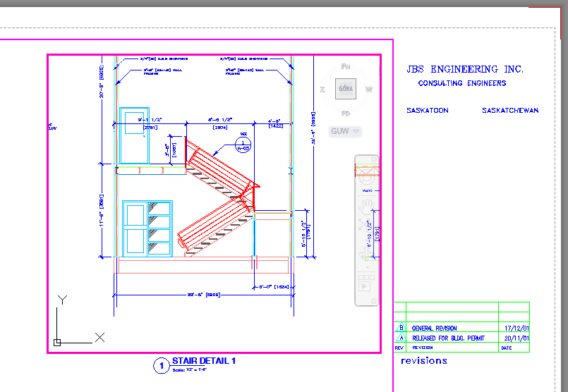
W rzutni z etykietą STAIR DETAIL 1 powinien być widoczny nowy obiekt WTekst, ponieważ przypisano mu skalę 1/2"=1'-0". Ten tekst nie będzie wyświetlany w rzutni STAIR SECTION 1, ponieważ przypisano jej skalę 1/4"=1’-0".

W następnej sekcji omówimy dodawanie skali opisu do obiektu opisowego, co umożliwi wyświetlanie tego tekstu również w rzutni STAIR SECTION 1 w skali 1/4"=1'-0".
Po utworzeniu obiektu opisowego można dodać do niego dodatkowe skale opisu lub usunąć z niego skale, które nie są już potrzebne. Nowe skale opisu wpływają na wygląd obiektu w obszarze modelu i w rzutniach w układzie.
W poniższych punktach opisano sposób dodawania skal opisu do opisowego obiektu WTekst utworzonego w poprzednim ćwiczeniu:



Obiekt WTekst jest teraz wyświetlany w rzutni STAIR SECTION 1 i jest wyświetlany z wysokością tekstu na papierze równą 1/16" na podstawie skali rzutni wynoszącej 1/4"=1'-0".

Obiekty opisowe umieszcza się na warstwach tak jak wszystkie inne obiekty, jednak najlepiej jest umieścić je na ich własnych warstwach i sterować ich widocznością przy użyciu bieżącej skali opisu w obszarze modelu lub w rzutni w układzie. Przycisk Widoczność opisu ( Wyszukiwanie ) na pasku stanu określa, czy wyświetlane są wszystkie obiekty opisowe niezależnie od przypisanej do nich skali, czy tylko te, które są zgodne z bieżącą skalą opisu.
W poniższych punktach przedstawiono używanie przycisku Widoczność opisu:
Zauważ, że zniknęły wszystkie obiekty opisu.

Zauważ, że na rysunku są wyświetlane tylko obiekty opisowe ze zgodną skalą opisu.
Wszystkie obiekty opisowe powinny być ponownie widoczne niezależnie od bieżącej skali opisu.
Wskutek dodania do obiektu opisowego skali opisu jest tworzona i obsługiwana nowa reprezentacja tego obiektu. Poszczególne z tych reprezentacji można zobaczyć po wybraniu obiektu opisowego. Na przykład na poniższej ilustracji przedstawiono wielolinię odniesienia z przypisanymi skalami opisu 1/4"-1'-0" i 1/2"=1'-0", przy czym bieżąca skala opisu rysunku jest ustawiona na 1/4"=1'-0".
Mimo że po wybraniu obiektu opisowego są widoczne wszystkie jego reprezentacje, zmodyfikować można tylko reprezentację zgodną z bieżącą skalą opisu za pomocą uchwytów. Standardowych poleceń edycji, takich jak PRZESUŃ i SKALA, nie można używać do modyfikowania reprezentacji obiektu opisowego.
Resetowanie wszystkich reprezentacji obiektu opisowego:
Style tekstu opisowego nie są wymagane do utworzenia tekstu opisowego, ale pomagają uprościć ten proces, podobnie jak nieopisowe style tekstu. Główną różnicą między stylami tekstu opisowego i nieopisowego jest właściwość Opisowy. Gdy właściwość Opisowy jest włączona i dany styl jest bieżący, wszelki utworzony tekst jest opisowy. Właściwość Wysokość tekstu na papierze określa końcową wysokość tekstu, natomiast właściwość Dopasuj orientację tekstu do układu określa, czy tekst jest zorientowany względem układu i rzutni, w której jest wyświetlany.

Istniejące obiekty opisu i kreskowania na rysunku można w kilku krokach zmienić w opisowe. Może to być korzystne w przypadku zmieniania opisu w istniejącym modelu lub szczegółach w opisowy bez ponownego tworzenia tych obiektów opisu lub kreskowania.
W poniższych punktach przedstawiono sposób zmieniania obiektu nieopisowego w opisowy:

Na używanym wcześniej rysunku przykładowym ustawiono już skale opisu dla poszczególnych rzutni w układzie SECTIONS AND DETAILS, które są zgodne ze skalami poszczególnych rzutni. Podczas tworzenia nowej rzutni i ustawiania jej skali skala opisu jest automatycznie ustawiana na zgodną ze skalą rzutni. Jeśli te dwie skale nie są zgodne, można kliknąć przycisk Synchronizacja skali rzutni (), aby dopasować skalę opisu do skali rzutni. Gdy te dwie skale są zgodne, przycisk Synchronizacja skali rzutni jest niebieski. Aby uzyskać więcej informacji na temat tworzenia i skalowania rzutni, zobacz temat Korzystasz? Wstępne skalowanie rzutni układu.

Podczas pracy z przekrojami i widokami wysokości nad płaszczyzną oraz szczegółami w wielu skalach obiekty opisowe i skalowanie opisów mogą uprościć opisywanie projektów. Wynika to z tego, że pozwala to niezwykle łatwo zapewnić wyświetlanie opisu we właściwym rozmiarze niezależnie od skali przypisanej do rzutni.
Poniżej przedstawiono polecenia i zmienne systemowe powiązane z obiektami opisowymi i skalowaniem opisów na rysunku.
| Polecenie | Opis |
|---|---|
| OPISRESET | Resetuje położenia wszystkich alternatywnych odwzorowań skali wybranych obiektów opisowych. |
| OPISAKTUAL | Aktualizuje istniejące obiekty opisowe tak, aby były zgodne z bieżącymi właściwościami ich stylów. |
| SKALAOBIEKTU | Dodaje lub usuwa obsługiwane skale obiektów opisowych. |
| EDLISTYSKAL | Steruje listą skal dostępnych w przypadku rzutni układu, układów stron i drukowania. |
| Zmienna systemowa | Opis | Wartość domyślna | Miejsce zapisu |
|---|---|---|---|
| ANNOALLVISIBLE | Ukrywa lub wyświetla obiekty opisowe, które nie obsługują bieżącej skali opisu. | 1 | Rysunek |
| ANNOAUTOSCALE | Aktualizuje obiekty w sposób powodujący obsługę skali opisu w reakcji na zmianę skali opisu. | -4 | Rejestr |
| ANNOSCALEZOOM | Określa, czy powiększanie kółkiem myszy w rzutniach obszaru papieru jest sterowane przez określone skale powiększenia, czy niezależne od skal rzutni (dotychczasowe zachowanie). | 0 | Rejestr |
| ANNOTATIVEDWG | Określa, czy rysunek, po wstawieniu do innego rysunku, ma się zachowywać jak blok opisowy. | 0 | Rysunek |
| CANNOSCALE | Ustawia nazwę bieżącej skali opisu w przypadku obszaru bieżącego. | 1:1 | Rysunek |
| CANNOSCALEVALUE | Wyświetla wartość bieżącej skali opisu. | 1.0000 | Rysunek |
| DIMANNO | Określa, czy bieżący styl wymiarowania jest opisowy. | 0 | Rysunek |
| HPANNOTATIVE | Określa, czy nowe wzory kreskowania są opisowe w tej sesji. | 0 | Brak zapisu |
| SAVEFIDELITY | Określa dokładność wizualną obiektów opisowych w programie AutoCAD 2007 i wcześniejszych wersjach. | 1 | Rejestr |
| SELECTIONANNODISPLAY | Określa, czy dodatkowe reprezentacje skali mają być tymczasowo wyświetlane w stanie przyciemnionym, gdy zostanie wybrany obiekt opisowy. | 1 | Rejestr |