A propriedade Disciplina determina como os elementos específicos da disciplina são exibidos em uma vista.
Use a propriedade Disciplina para controlar os seguintes comportamentos:
A propriedade Disciplina afetará as vistas se você estiver usando um modelo único que incorpora múltiplas disciplinas ou se o modelo for vinculado a outros modelos específicos da disciplina.
Também será possível usar essa propriedade para organizar vistas no Navegador de projeto. Consulte Organizar vistas no Navegador de projeto.
Para definir a propriedade Disciplina para uma vista, selecione o nome da vista no Navegador de projeto ou abra a vista. Na paleta Propriedades, a propriedade Disciplina está listada na seção Gráficos. Selecione um valor na lista.
Os exemplos abaixo são baseados em um modelo no qual o seguinte é uma planta de corte nível 1. Na planta de corte, a seta verde indica a toda a faixa da vista para as vistas de planta correspondentes. A seta azul indica a faixa da vista principal, que foi estendida acima do forro para o plenum e abaixo do Nível 1. A seta laranja indica a profundidade da vista. (Consulte Sobre a faixa da vista). Nas vistas de planta de amostra abaixo, o nível de detalhe da vista está definido como Alta resolução para que os elementos mecânicos, elétricos e hidráulicos sejam exibidos de forma mais completa para fins de ilustração.

Se desejado, é possível fazer o download do modelo para compreender melhor como a propriedade Disciplina afeta as vistas: view_discipline_example.rvt
Quando você cria uma vista com base em uma vista existente, a nova vista herda a disciplina da vista de origem. Essa regra se aplica às chamadas de detalhe, aos cortes, às elevações e às vistas duplicadas.
Por exemplo, suponha que você abra uma vista de planta estrutural (uma vista de planta, cuja propriedade Disciplina está definida como Estrutural) e usa a ferramenta Corte para criar um corte da vista de planta. A propriedade Disciplina da nova vista de corte também é definida como Estrutural.
Identificadores de vista (os símbolos usados para indicar cortes, elevações e chamadas de detalhe) serão exibidos em uma vista somente se a disciplina da vista atual coincidir com a disciplina da vista de destino. Consulte os exemplos abaixo.
Quando a propriedade Disciplina estiver definida como Arquitetura:
Por exemplo, a vista exibe colunas de arquitetura e pilares estruturais, bem como elementos mecânicos, elétricos e de tubulação.
Exemplos: na seguinte planta de piso de arquitetura:
Em um lado da parede, as bandejas de cabos são exibidas. No outro lado da parede, as bandejas de cabos estão obscurecidas por uma cobertura de arquitetura.
Um identificador é exibido para uma vista de corte cuja propriedade Disciplina está definida como Arquitetura. A planta não exibe identificadores para vistas atribuídas a outras disciplinas.
Quando a propriedade Disciplina estiver definida como Estrutural:
Por exemplo, a vista exibe colunas de arquitetura e pilares estruturais, bem como elementos mecânicos, elétricos e de tubulação.
Exemplos: na seguinte vista da planta estrutural:
As paredes não estruturais não são exibidas. (Compare com a planta de arquitetura mostrada acima).
Um identificador é exibido para uma vista de corte cuja propriedade Disciplina está definida como Estrutural. A planta não exibe identificadores para vistas atribuídas a outras disciplinas.
As linhas ocultas são exibidas para mostrar os elementos do framing estrutural abaixo do piso, porque a faixa da vista da planta se estende abaixo do nível 1.

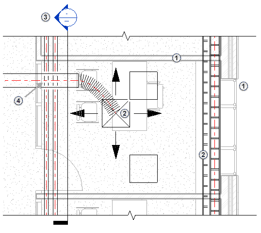
Quando a propriedade Disciplina estiver definida como Mecânica, Elétrica ou Hidráulica:
Exemplos: na seguinte vista de planta mecânica:
Os elementos de arquitetura e estruturais (paredes, portas, janelas, mobiliário) são exibidos em meio-tom com base na faixa da vista. Os elementos de forro não são exibidos na vista.
Os elementos mecânicos, elétricos e de tubulação são exibidos como definidos por Estilos de objeto. Esses elementos sobrepõem outros elementos, independentemente de sua localização vertical real no modelo.
Um identificador é exibido para uma vista de corte cuja propriedade Disciplina está definida como Mecânica. A planta não exibe identificadores para vistas atribuídas a outras disciplinas.
As linhas ocultas para elementos mecânicos, elétricos e hidráulicos são exibidas na vista.

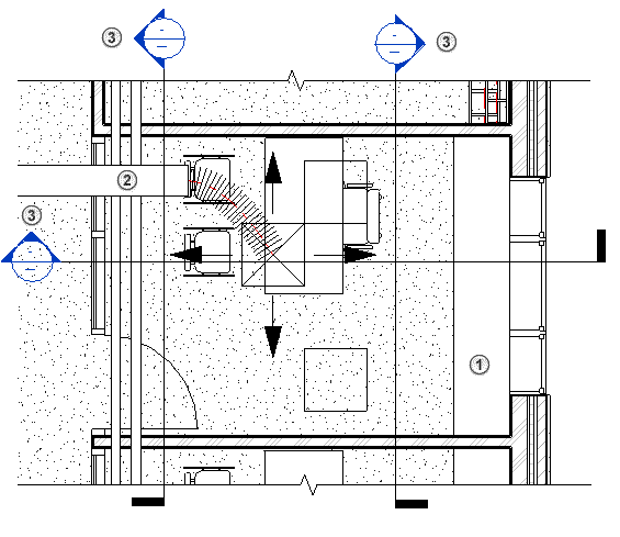
Quando a propriedade Disciplina estiver definida como Coordenação:
Por exemplo, a vista exibe colunas de arquitetura e pilares estruturais, bem como elementos mecânicos, elétricos e de tubulação.
Alguns elementos mecânicos, elétricos e de tubulação dentro da faixa de vista são exibidos, a despeito se o plano de corte efetua a intersecção com os mesmos.
Além disso, os elementos mecânicos, elétricos e de tubulação que estão acima do plano de corte são desenhados em cima de outros elementos. Entre estes elementos, sua ordem de desenho é definida por alturas relativas a partir do nível da vista. Quando estes elementos ocorrem abaixo do plano de corte, elas são desenhadas na ordem com relação a distância do plano de corte.
Exemplos: na seguinte vista de planta de coordenação:
Os elementos de todas as disciplinas são exibidos na vista de acordo com a faixa da vista.
Os elementos mecânicos, elétricos e de tubulação são exibidos, sobrepondo outros elementos de acordo com as regras descritas acima.
Os identificadores são exibidos para as vistas de corte para todas as disciplinas.
