通过定义连接器参数(如引脚数量、引脚间距和引脚值)动态地构建连接器。
“插入连接器”工具可以根据用户定义的参数生成连接器符号。该符号被动态创建,然后作为块插入到当前图形文件中。由于这些符号是根据需要创建的,因此不需要创建和维护连接器符号库。
更改图形特性


。 查找
“元件”对话框中,选择“连续”。
“线号”对话框的“新线号放置”区域中,选择“导线内”。
向图形添加连接器


。 查找
引脚间距: 1.0
引脚数: 15
固定间距
引脚列表: 1
全部插入

预览如下图所示。

显示连接器的预览轮廓,以便将其放置在图形上。显示连接器插头侧的圆角。“x”指明连接器的插入点。箭头指明插头/插座或仅插头连接器插入的插头端接线方向,或指明仅插座连接器插入的接线方向。
指定插入点或 [Z=缩放,P=平移,X=导线交叉,V=水平/垂直,TAB=翻转]:
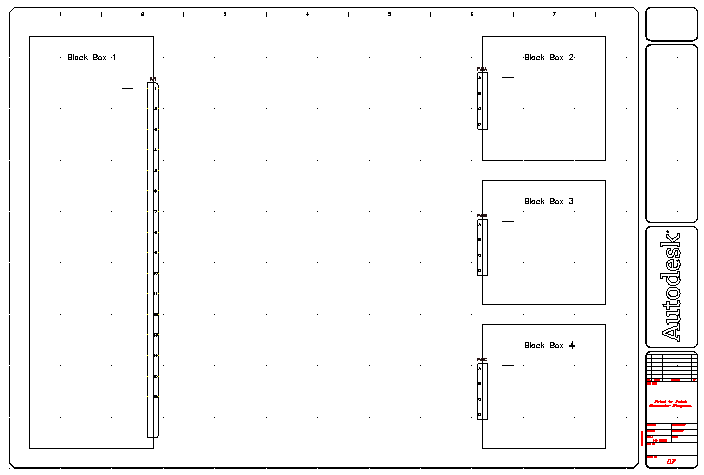
进行相应选择以将连接器放置在黑盒子 1 右侧边框的中间

连接器被自动指定元件标记 PJ1。


。 查找
引脚间距: 0.75
引脚数: 4
固定间距
引脚列表: A
全部插入
预览如下图所示。

指定插入点或 [Z=缩放,P=平移,X=导线交叉,V=水平/垂直,TAB=翻转]:
进行相应选择以将连接器放置在黑盒子 2 左侧边框的中间

连接器被自动指定元件标记 PJ2。
连接器被分别指定标记 PJ3 和 PJ4。
