使用“插入导线”和“多母线”工具在连接器之间添加导线。
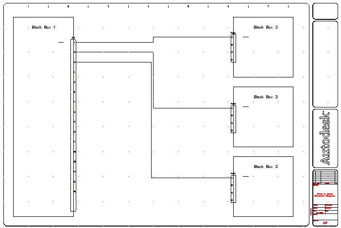
黑盒子 1 为大型元件,例如电源箱。黑盒子 2 至黑盒子 4 为小型元件,例如电源箱的一部分。元件必须布线在一起。最简单的方法是使用“插入导线”和“多导线母线”工具。
将连接器布线在一起


。 查找
指定导线起点或 [导线类型(T)/X=显示连接(X)]:
单击黑盒子 1 上引脚 1 处的“PJ1”
指定导线末端或 [继续(C)]: 单击黑盒子 2 上引脚 A 处的“PJ2”

请注意,“插入导线”工具在连接器之间绘制了的导线,避免屏幕上出现任何现有的几何图形。

。 查找
水平间距: 0.75
垂直间距: 0.50
开始于: 元件 (多导线)

窗选接线开始点
选择黑盒子 1 (1) 上的引脚 5~7 并单击鼠标右键
到 (T=导线类型):
将导线拖动到所插入的三条导线的右侧,
到点 (继续(C)/翻转(F)):
将导线向上拖向黑盒子 2 上的 PJ2,输入 C ,然后按 ENTER 键(以继续并锁定拖动)
到 (继续(C)/翻转(F)):
将导线向右拖动并连接到 PJ2 (2) 上的引脚 B-D


。 查找
窗选接线开始点:
选择黑盒子 1 上的引脚 9~11 并单击鼠标右键
到 (T=导线类型):
将导线拖动到右侧,
到点 (继续(C)/翻转(F)):
将导线向上拖向黑盒子 3 上的 PJ3,输入 C,然后按ENTER 键(以继续操作并锁定拖动)
到 (继续(C)/翻转(F)):
将导线向右拖动并连接到 PJ3 上的引脚 B-D

。 查找
窗选接线开始点:
选择黑盒子 1 上的引脚 13 到 15 并按 ENTER 键
到 (T=导线类型):
将导线拖动到右侧,
到点 (继续(C)/翻转(F)):
将导线向下拖向黑盒子 4 上的 PJ4,输入 C,然后按 ENTER 键(以继续并锁定拖动)
到 (继续(C)/翻转(F)):
将导线向右拖动并连接到 PJ4 上的引脚 B-D
