Die Funktion zur Modelldokumentation generiert assoziative 2D-Zeichnungen aus 3D-Modellen aus AutoCAD und Inventor und nicht-assoziative 2D-Zeichnungen aus 3D-Modellen von mehreren anderen Autodesk-Produkten.
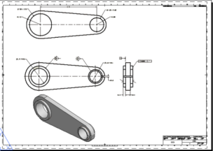
Der Grundstein einer Modelldokumentations-2D-Zeichnung ist das Zeichnungsansichtsobjekt.

Eine Zeichnungsansicht ist ein rechteckiges Objekt, das eine 2D-Projektion des 3D-Modells enthält. Der Rahmen der Zeichnungsansicht wird nur angezeigt, wenn Sie die Ansicht auswählen oder wenn den Cursor darüber bewegen. Obwohl sich der Rahmen der Zeichnungsansicht auf dem aktuellen Layer befindet, wird er nicht gedruckt. Die Geometrie ist immer sichtbar und wird auf einem vordefinierten Layersatz erstellt. Da die Ansichtsgeometrie assoziativ mit dem 3D-Quellmodell verbunden ist, können Sie keine Ansichtsgeometrie auswählen, um diese zu ändern. Sie können die Darstellung der Ansichtsgeometrie jedoch ändern, indem Sie die Eigenschaften der Layer ändern, auf denen sich die Ansichtsgeometrie befindet.
Die erste Ansicht, die Sie in einer Zeichnung platzieren, ist eine Erstansicht. Erstansichten sind Zeichnungsansichten, die direkt aus dem 3D-Modell abgeleitet werden.

Nachdem eine Erstansicht in einem Layout platziert ist, können Sie Projektionsansichten daraus erzeugen. Im Gegensatz zu einer Erstansicht werden Projektionsansichten nicht direkt aus dem 3D-Modell abgeleitet. Stattdessen werden sie von einer Erstansicht (oder einer anderen Projektionsansicht, die bereits in einem Layout existiert) abgeleitet. Die Projektionsansichten verfügen über eine Eltern-Kind-Beziehung mit der Ansicht, aus der sie erstellt wurden. Die Einstellungen einer untergeordneten Ansicht stammen aus dem übergeordneten Objekt. Falls erforderlich, können Sie diese Einstellungen überschreiben.
Außerdem können Sie aus allen vorhandenen Zeichnungsansichten Schnittansichten und Detailansichten erstellen. Eine Schnittansicht ist eine Projektionsansicht, in der die internen Details eines Modells angezeigt werden. Eine Detailansicht ist eine Projektionsansicht, in der ein ausgewählter Teil eines Modells vergrößert dargestellt wird.
Nach dem Erstellen der Ansichten können Sie Anmerkungen, Bemaßungen, Symbole und andere Kommentare zur Ansichtsgeometrie hinzufügen.

Zeichnungsansichtsobjekte werden aus allen Kopierbefehlen herausgefiltert, können jedoch wie jedes andere Objekt verschoben, gedreht oder gelöscht werden.
Zeichnungen, die mit einer neueren Version von AutoCAD erstellt wurden, können in älteren Versionen von AutoCAD nicht bearbeitet werden. So können Zeichnungsansichten von AutoCAD 2014 beispielsweise nicht in AutoCAD 2013 bearbeitet werden, obwohl beide Versionen von AutoCAD in demselben Dateiformat (AutoCAD 2013) gespeichert werden. Sie können in dieser Zeichnungsdatei keine Zeichnungsansichtseigenschaften bearbeiten, keine neuen Zeichnungsansichten hinzufügen oder Zeichnungsansichten aktualisieren.