제도 및 모델 패턴을 모델에서 PAT 파일로 내보냅니다.
커뮤니티 아이디어: 지형 솔리드 요소를 생성하는 데 사용되는 점 수를 줄입니다.
커뮤니티 아이디어: 요소 모양을 편집할 때 상황별 탭의 배치 컨트롤을 사용하여 분할 선의 높이를 제어할 수 있습니다.
모델에서 요소가 표시되는 방식을 더 효과적으로 시각화하려면 유형 특성 대화상자의 요소에 비주얼 스타일을 적용합니다.
태그가 치수선에 평행인 상태에서 지정된 간격띄우기로 다중 보강 철근 주석을 더 빠르게 배치할 수 있습니다.
캔버스의 2D 또는 3D 뷰에서 보강 철근 세그먼트 길이를 직접 편집할 수 있어 보강 철근 세부작업을 더 쉽게 수행할 수 있습니다.
분할이 필요한 다양한 시나리오에서 더 빠르게 모델링하려면 모든 구조 프레임 및 기둥에 대해 요소 분할 및 간격으로 분할 도구를 사용합니다.
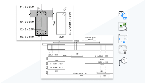
구조 단면 모양 매개변수를 사용하여 구조 프레임에 대한 태그 레이블을 사용자화할 수 있습니다.
구조 해석 부재에 대해 자르기 및 연장 도구를 사용하면 보다 생산적인 모델링 경험을 창출할 수 있습니다.
구조 해석 부재에 대해 요소 분할 도구를 사용하면 보다 생산적인 모델링 경험을 창출할 수 있습니다.
Dynamo 2.18에는 데이터 시각화를 위한 향상된 차트 노드 세트, Python 스크립트 편집기 환경 개선 사항, 노드 라이브러리 크기를 신속하게 조정하는 방법 등이 도입되었습니다.
Ctrl+스크롤을 사용하여 프로젝트 탐색기의 컨텐츠를 확대/축소합니다. 검색 후 화살표 키를 사용하여 검색 결과에서 위로/아래로 이동합니다.
면적 규칙 적용 값 설정이 기억되고 기본값을 사용자화할 수 있습니다.
커뮤니티 아이디어: 리본에서 여러 문자 요소에 대한 문자 정렬을 한 번에 변경할 수 있습니다.
작업 공유 모델에서 뷰를 삭제할 때 데이터 손실을 방지하기 위해, 작업 공유 모델에서 삭제된 뷰를 복원하는 방법에 대한 추가 정보를 나타내는 경고 메시지가 표시됩니다.
커뮤니티 아이디어: 지형 요소를 솔리드 형상으로 작성합니다.
커뮤니티 아이디어: Revit은 특성 팔레트, 프로젝트 탐색기, 옵션 막대, 뷰 조절 막대, 상태 막대를 포함한 첫 번째 레벨 사용자 인터페이스에 대해 어두운 테마를 지원합니다. 또한 리본과 옵션 대화상자에서 도면 영역(캔버스) 테마를 어둡게 또는 밝게로 설정할 수 있습니다.
커뮤니티 아이디어: 정렬 도구를 사용하여 모양 편집 요소에서 표면 패턴을 정렬합니다. 패턴은 전체 표면에 걸쳐 정렬할 수 있고, 삼각형 면은 개별적으로 정렬할 수 있습니다.
커뮤니티 아이디어: 프로젝트 환경에서 절단을 허용하는 추가 카테고리가 활성화되었습니다.
커뮤니티 아이디어: 이제 프로젝트 탐색기 상단에서 검색 기능을 사용할 수 있습니다.
커뮤니티 아이디어: 구름형 수정기호 일람표를 사용하여 구름형 수정기호 매개변수 정보를 신속하게 관리할 수 있습니다.
커뮤니티 아이디어: 다양한 분야의 모델과 프로젝트의 단계 간에 시각적으로 교차 확인할 수 있습니다. 3D 뷰에서 협업을 위해 Revit 또는 기타 모델링 도구에서 작성된 협업 모델을 시각적으로 비교합니다.
커뮤니티 아이디어: 스냅 점을 사용하여 컨텍스트에서 쉽게 모델링하거나, 협업 모델 점을 기준으로 두 참조 간을 측정하거나, 협업 모델을 더 효과적으로 배치할 수 있습니다.
세트에서 철근을 정렬하는 방법을 선택하고 세트의 철근을 정렬/닫기 구속조건에서 선택한 평면형 면에 평행하게 만듭니다.
커뮤니티 아이디어: 철근 배근 도면에 구부림 상세정보를 추가하여 정확한 철근 구부림 및 설치 지침을 작성합니다.
커뮤니티 아이디어: 철근 형상을 정확하게 표현하는 모양 구부림 상세정보가 포함된 철근 구부림 일람표를 추가하면 제작 지침을 명확하게 작성할 수 있습니다.
요소 간에 연관을 여러 개 생성하면 물리적 모델과 해석 모델 간에 업데이트를 더욱 효과적으로 조정할 수 있습니다.
호스트 객체의 정의된 영역에 있는 해석 부재 및 패널에 구조 하중을 적용합니다.
상세 보고서에서 생성된 정보를 사용하여 철골 연결을 보다 효율적으로 관리할 수 있습니다.
설계 및 제작 워크플로우를 통합하기 위해 흐름 및 압력 강하 계산이 직선 세그먼트 제작 부품에 추가되었습니다. 이러한 결과는 직선 세그먼트에서만 사용할 수 있습니다.
단면 상자, 뷰 필터 또는 가시성/그래픽 재지정을 사용하여 3D 뷰에 요소를 표시하고, 에너지 해석 모델을 생성할 때 해당 요소만 포함할 수 있습니다.
Insight - 기술 미리보기는 건축가가 초기 설계 단계부터 내재 탄소 영향에 대한 인사이트를 얻을 수 있도록 도와줍니다.
커뮤니티 아이디어: 클라우드 모델 캐시를 더 쉽게 관리할 수 있도록, 옵션 대화상자에서 폴더 경로를 지정할 수 있습니다.
새로운 텍스처 비주얼 스타일을 사용하여 조명 효과 없이 렌더 재료의 텍스처를 적용할 수 있습니다.
커뮤니티 아이디어: 패밀리에서 2D 요소를 그리는 순서는 패밀리 편집기에서, 프로젝트에서 그리고 PDF/인쇄로 출력할 때 시각적으로 동일합니다.
개별 협업 객체를 선택하고 그 특성에 액세스합니다.
타사 색상표 또는 사용자 정의 색상표를 사용하여 색상을 지정할 수 있습니다.
내 인사이트는 사용자의 소프트웨어 사용에 대한 인사이트와 사용 환경을 개선하기 위한 제안 사항을 제공하며 Revit 홈에 표시됩니다.
커뮤니티 아이디어: 2000개가 넘는 아이콘이 새로운 최신 버전으로 대체되었습니다.
샘플 모델을 사용하여 피쳐 및 워크플로우에 대해 알아봅니다. 업데이트된 프로젝트 템플릿을 사용하면 프로젝트 시작 및 자체 템플릿 개발이 수월해집니다.
Twinmotion 드롭다운 메뉴에 자동 동기화 기능이 추가되었습니다.
그래프 문제 및 종속성을 보고, 이미지 출력을 추가하고, Revit 2024용 Dynamo 플레이어에서 새 샘플 그래프를 사용해 보십시오.
해석 모델 데이터(구조 하중)에서 직접 평면도의 면하중 패턴을 기록할 수 있습니다.
Revit API 문서에는 철골 연결 기능을 확장하기 위한 자세한 지침과 새 API 샘플이 포함되어 있습니다.
커뮤니티 아이디어: 이제 일조 연구를 실행하는 데 초 단위로 측정되는 더 짧은 시간 간격을 사용할 수 있습니다.
커뮤니티 아이디어: 리본에서 직접 태양 설정 대화상자에 액세스할 수 있습니다.
커뮤니티 아이디어: 이제 투시 뷰에서 끌어서 놓기 작업의 편집을 활성화할 수 있습니다.
스페이스바를 눌러 정렬된 분배 프리폼 보강철근의 스트럽 방향을 전환할 수 있습니다.
이제 텍스트, 이미지 또는 그래픽을 포함하여 내용을 명확하게 표시하기 위해 시트에 배치된 일람표의 모든 행 크기를 조정할 수 있습니다.
이제 뷰 도면 영역의 마우스 오른쪽 버튼 클릭 메뉴에서 시트를 직접 열 수 있습니다.
프로젝트 탐색기에서 여러 개의 뷰 및 일람표를 끌어서 놓거나 뷰 선택 대화상자에서 여러 항목을 선택하여 한 시트에 여러 개의 뷰 및 일람표를 동시에 배치할 수 있습니다.
작업할 때 크기를 조정할 수 있도록 21개의 대화상자가 개선되었습니다.
프로젝트 매개변수는 유형 및 인스턴스 특성 대화상자에서 알파벳순으로 정렬됩니다.
스코프 박스를 배치한 후 높이를 설정합니다.
각 해석 부하에 대한 부하 분류를 지정하고 전기 해석 구성요소에 대한 수용률을 적용할 수 있습니다.
수요 부하 계산에서 일치하지 않는 부하를 제외하려는 경우 부하 세트를 추가하고 대기 전력량을 설정합니다.
커뮤니티 아이디어: MEP 제작 세부 사항 담당자는 모델의 개별 덕트장치에 보강재를 추가할 수 있습니다.
설계 및 제작 워크플로우를 통합하기 위해 흐름 및 압력 강하에 대한 네트워크 기반 계산을 설계 덕트장치에 사용할 수 있습니다.
커뮤니티 아이디어: 이제 주석 방향 유지 패밀리 매개변수를 사용하여 공기 터미널 카테고리에서 주석 기호를 표시할 수 있습니다.