Динамическое построение соединителей путем задания параметров соединителей, например количества контактов и расстояния между ними, а также значений для них.
Инструмент "Вставить соединитель" формирует графический образ соединителя на основе пользовательских параметров. Графический образ создается "на ходу" и вставляется как блок в файл активного чертежа. Так как создание выполняется по мере необходимости, не требуется непременное создание и хранение библиотеки графических образов соединителей.
Изменение свойств чертежа


. найти
"Компоненты" установите флажок "Последовательные".
"Номера проводов", в разделе "Размещение новых номеров проводов" установите флажок "На линии соединения".
Добавление соединителей на чертеж


. найти
Интервал выводов: 1.0
Количество выводов: 15
Фиксированный интервал
Список выводов: 1
Вставить все

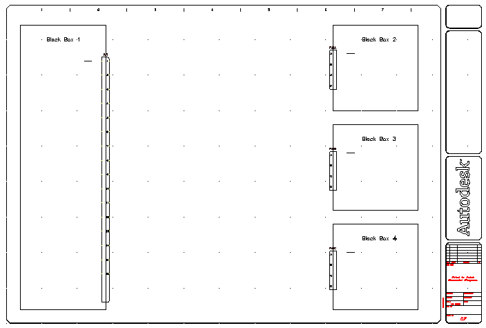
Образец для предварительного просмотра выглядит примерно так, как на следующей иллюстрации.

Отображается контур образца соединителя для размещения на чертеже. На стороне штыря соединителя показаны скругленные углы. Точка вставки соединителя помечена крестиком “x”. Стрелка указывает направление соединений проводов со стороны штыря для вставки соединителя штырь/гнездо или соединителя "только штырь" или показывает направление соединения проводов для вставки соединителя "только гнездо".
Задайте точку вставки [Z = зумирование, P = панорамирование, X = пересечение проводов, В = горизонтально/вертикально, TAB = отразить]:
Укажите точку для размещения соединителя в середине правой границы Символа ACAD-E 1

Соединителю автоматически назначается позиционное обозначение компонента PJ1.


. найти
Интервал выводов: 0.75
Количество выводов: 4
Фиксированный интервал
Список выводов: A
Вставить все
Образец для предварительного просмотра выглядит примерно так, как на следующей иллюстрации.

Задайте точку вставки [Z = зумирование, P = панорамирование, X = пересечение проводов, В = горизонтально/вертикально, TAB = отразить]:
Укажите точку для размещения соединителя в середине левой границы Символа ACAD-E 2

Соединителю автоматически назначается позиционное обозначение компонента PJ2.
Соединителям назначаются позиционные обозначения PJ3 и PJ4 соответственно.
