在本活动中,您将完成以下任务:
创建文本。
在“文本”工具栏中,单击“文本”。

“文本”命令位于“文本”下拉列表下。
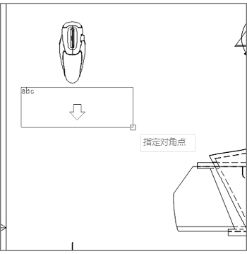
在前视图下面选择两个角点以创建文本框。

在前视图下面选择两个角点以创建文本框。
在文本框中键入文字“Front View”。
单击文本框外部的任意位置以提交此操作。
重复该过程,以在其他视图(“Detail A”除外,该视图已进行标记)的下面添加文字。在另外三个文本框中分别键入以下文字:
创建引线注释。
在“文本”工具栏中,单击“引线注释”。

“引线注释”命令位于“文本”下拉列表下。
单击仰视图中的刀片以放置引线的起点。
单击该视图的外部以放置引线的终点。
键入文字“Steel Blade”
单击文本框外部的任意位置以提交此操作。
重新定位引线注释。
单击引线注释以将其激活。
单击任意灰色夹点,以将引线注释移动到新位置。
单击引线注释外侧的任意位置以提交此操作。

引线注释。
编辑文本。
双击引线注释以激活文本编辑器。
单击宽度滑块并将其拖动到右侧以将文字设置为 2 行格式。

激活的文本编辑器。
单击文本框外部的任意位置以提交此操作。
在本活动中,您完成了以下任务: