
- Öffnen Sie die Datei 2mm_inplace_guard_start.idw im Verzeichnis \Tutorial Files\Cylinder Clamp.
Anmerkung: Diese Zeichnung enthält verschiedene Ansichten eines fertig gestellten Beispielschutzes, der mit den Beispiel-Lernprogrammdateien bereitgestellt wird.
- Klicken Sie in der Multifunktionsleiste auf
Registerkarte Mit Anmerkungen versehen
Gruppe Tabelle
Allgemein
. Das Dialogfeld Tabelle wird angezeigt, und im Grafikfenster ist der Cursor zur Ansichtsauswahl aktiv.
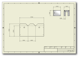
- Verschieben Sie den Cursor auf die Ansicht der Abwicklung, bis die gepunktete rote Ansichtsbegrenzung markiert wird.
- Klicken Sie, um die Ansicht der Abwicklung als Ausgangsansicht für die Tabelle Allgemein auszuwählen.
Anmerkung: Welche Spalten im Tabellentyp Allgemein bereitgestellt werden, hängt vom der Typ der ausgewählten Quellansicht ab. In diesem Fall stellt die Tabelle Biegeinformationen bereit.
- Klicken Sie im Dialogfeld Tabelle auf OK, um die vorgegebenen Auswahlen zu übernehmen, das Dialogfeld zu schließen und die Tabelle einzufügen.
- Bewegen Sie den Cursor über die obere linke Ecke des Zeichnungsrahmens. Wenn sich die Darstellung des Cursors ändert, um eine "Punkt an"-Abhängigkeit anzuzeigen, klicken Sie, um die Tabelle zu platzieren.
Die erstellte Tabelle enthält Spalten für Biegungs-ID, Biegungsrichtung, Biegungswinkel und Biegungsradius. Als Werte werden die Werte der einzelnen Biegungen in der ausgewählten Ansicht verwendet. Beachten Sie auch, dass der Abwicklungsansicht neben den Biegungsmittellinien Biegungs-IDs hinzugefügt wurden.
Die angegebene Biegereihenfolge stimmt wahrscheinlich nicht mit der Reihenfolge überein, die Ihrer Fertigungsabteilung verwendet wird. Die Änderung der Biegungsreihenfolge und die Anpassung der Tabelle wird im Lernprogramm Blechbauteile 2 erläutert.
Im nächsten Schritt platzieren Sie eine Stanztabelle in die Zeichnung.
Zurück | Weiter