Estire los conectores existentes y añada, mueva e intercambie polos de conectores.
La barra de herramientas Insertar conector contiene herramientas para modificar conectores y polos de conectores. También puede añadir, eliminar o desplazar los polos en el interior del conector.
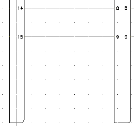
Estiramiento de los conectores existentes


. Buscar
Precise el extremo del conector que desea estirar: Seleccione la parte inferior de PJ1
Precise el segundo punto de desplazamiento:
Empuje el conector hacia la parte inferior de Caja negra 1


Adición de polos de conectores


. Buscar
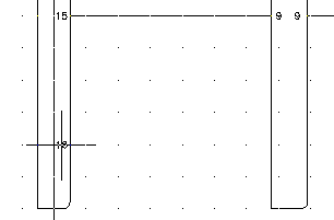
Seleccione un conector: Seleccione PJ1
Precise dónde desea insertar el nuevo polo o [Restablecer]<16>:
Seleccione 4 espacios debajo del polo 15 en PJ1, haga clic con el botón derecho y seleccione Intro
El siguiente número de polo disponible (16) se insertará en el punto seleccionado.



. Buscar
Seleccione un conector: Seleccione PJ6
Precise dónde desea insertar el nuevo polo o [Restablecer]<10>:
Seleccione el polo nuevo 16 en PJ1 para insertar el polo 10 en línea con él, haga clic con el botón derecho y seleccione Intro

Modificación de polos de conector


. Buscar
Seleccione el polo de conector que desea desplazar: Seleccione el polo 16 en PJ1
Precise una nueva ubicación para el polo 16: Seleccione dos espacios por encima de PJ1
Seleccione el polo de conector que desea desplazar: Seleccione el polo 10 en PJ6
Precise una nueva ubicación para el polo 10:
Seleccione el polo 16 en PJ1 para desplazar el polo 10 en línea con él y haga clic con el botón derecho



. Buscar
Seleccione un polo de conector: Seleccione el polo 16 en PJ1
Seleccione el polo de conector con el que se va a intercambiar: Seleccione el polo 12 en PJ1, pulse el botón derecho


. Buscar
Seleccione el conector que desea invertir: Seleccione el conector en la línea superior, pulse el botón derecho



. Buscar
Espaciado de polos: 1.0
Número de polos: 2
Espaciado fijo
Lista de polos: 1
Insertar todo
Especifique el punto de inserción o [Z=zoom, E=encuadre, X=intersección de cables, V=horizontal/vertical, TAB=cambiar]:
Seleccionar para colocar el conector en la parte superior de la Caja negra 1


. Buscar
Seleccione el conector que desea girar o [Retener]:
Seleccione el conector nuevo, haga clic con el botón derecho y elija Intro.
