構成 3: シーリング マウント照明

シーリングマウントもよくある照明のタイプです。例としてはシャンデリア、レール照明、ペンダント照明が含まれます。

シーリングマウントのシミュレーション設定は、サーフェスマウントおよび埋め込み照明向けUL1598テスト手順のガイドラインに従っています。自然対流と温度分布をシミュレートするには、テストする天井を空気のボリュームに内包します。テストボックスを作成する方法はいくつかあり、物理テストとどの程度一致させるかによって異なります。壁面テストボックスモデルのディテールの量により、熱がどの程度壁に伝導するかが変わります。

サーフェスシーリング照明の場合、断熱天井、ソリッドテストボックス、UL Testボックスの3つのオプションがあります。天井埋込型照明の場合、ソリッドテストボックスとUL Testボックスの2つのオプションがあります。

シーリング マウント照明のジオメトリ

解析領域はテスト構造の構成に応じて作成します。各構成に対して、テスト構造の周囲に空気のボリュームを作成し、自然対流による空気の流れと伝熱をシミュレートします。

シーリングマウント照明のシミュレート方法は、実験結果との一致精度に応じていくつかあります:

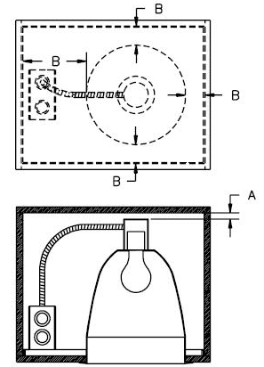
断熱設定: サーフェス シーリング

天井部品を抑制しメッシュ分割されないようにします。これにより熱が天井に伝導せず、器具に対して断熱された取り付け壁を作成します。このアプローチは熱が自然対流によってのみ除去される「ワーストケース」条件をシミュレートするものです。設計オプションを簡単に比較するにはこの構成を使用してください。

壁と器具を取り囲む空気ボリュームは次の寸法にしてください:

注: 空気は下から流入し、上から流出します。理想的な流れプロファイルとトラブルシューティングに関する詳細

硬質木材設定: サーフェス シーリング

この構成では、器具から熱が伝導し周囲の空気に対流で放出されます。これは実際の構成を再現したものではありませんが、壁の未知なヒートシンク特性を除外し、温度管理された部屋内のULサーマルテスト戦略に似た構成です。

壁と器具を取り囲む空気ボリュームは次の寸法にしてください:

UL Test 設定: サーフェス シーリング

UL Test SetupはHardwood構成と同じ寸法ですが、木材のベースの代わりにUL Testボックスを使用したものです。実際のULテストに忠実なモデルを作成するにはこれを使用します。

UL 1598仕様に指定された通りに壁テスト構造を作成します。

CADで八角形のジャンクションボックスを簡略化し板金のディテールを削除します。

テスト構造を空気ボリュームの中に収めます。テスト構造を取り囲む空気ボリュームは次の寸法にしてください:

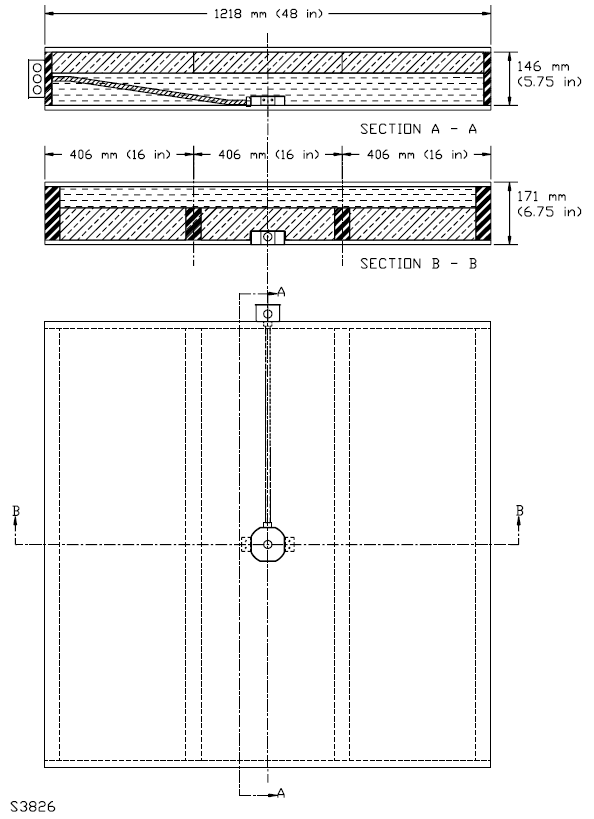
UL Test 設定: 埋め込み型シーリング

シーリング埋込型照明のシミュレートで推奨される方法は、埋込型のUL Test Setupを使用することです。UL Testボックスは実際のULテストに忠実なモデルを作成します。

UL 1598仕様に記述されたガイドラインに沿って、テスト構造のCAD モデルを作成します。1/2インチ合板、1/2インチクリアランスを使用します(以下の寸法AおよびB)。上の図は平面図です。下の図は側面図です。

照明モデルの板金を簡素化し、半径の小さいもの、フォームフィーチャー、コーナーギャップなどを取り除きます。これらはメッシュサイズと解析時間の増大につながりますが流れおよび伝熱解析の精度向上には役立ちません。

テスト構造の周囲に空気のボリュームを作成し、自然対流による空気の流れと伝熱をシミュレートします。

境界条件

ユニット 1 | ウォールマウント | ポールマウント