構成 2: ウォールマウント式のルミネア

多くの照明アプリケーションは垂直な壁に取り付けられています。

ウォールマウントのシミュレーション設定は、サーフェスマウントおよび埋め込み照明向けUL1598テスト手順のガイドラインに従っています。自然対流と温度分布をシミュレートするには、テストする壁を空気のボリュームに内包します。テストボックスを作成する方法はいくつかあり、物理テストとどの程度一致させるかによって異なります。壁面テストボックスモデルのディテールの量により、熱がどの程度壁に伝導するかが変わります。

サーフェス ウォール照明

解析領域はテスト構造の構成に応じて作成します。各構成に対して、テスト構造の周囲に空気のボリュームを作成し、自然対流による空気の流れと伝熱をシミュレートします。

サーフェスウォール型照明をシミュレートする方法は3つあります:

断熱壁

器具を直接断熱壁に取り付けます。熱は壁に伝導しないため、熱が自然対流によってのみ除去される「ワーストケース」条件をシミュレートすることになります。設計オプションを簡単に比較するにはこの構成を使用してください。

ジャンクションボックスや取り付けブラケットなどを含めないでください。結果にはほとんど影響なく、メッシュと実行時間の増大につながります。

注: 空気は下から流入し、上から流出します。理想的な流れプロファイルとトラブルシューティングに関する詳細

簡略化されたテストボックスの構造

この構成では、器具から熱が伝導し周囲の空気に対流で放出されます。これは実際の構成を再現したものではありませんが、壁の未知なヒートシンク特性を除外し、温度管理された部屋内のULサーマルテスト戦略に似た構成です。

壁と器具を取り囲む空気ボリュームは次の寸法にしてください:

UL指定のテストボックス構造

UL Test SetupはHardwood構成と同じ寸法ですが、木材のベースの代わりにUL Testボックスを使用したものです。実際のULテストに忠実なモデルを作成するにはこれを使用します。

UL 1598仕様に指定された通りに壁テスト構造を作成します。

CADで八角形のジャンクションボックスを簡略化し板金のディテールを削除します。

テスト構造を空気ボリュームの中に収めます。テスト構造を取り囲む空気ボリュームは次の寸法にしてください:

ウォール埋め込み型照明

解析領域はテスト構造の構成に応じて作成します。各構成に対して、テスト構造の周囲に空気のボリュームを作成し、自然対流による空気の流れと伝熱をシミュレートします。

埋込型照明をシミュレートする方法は2つあります:

簡略化されたテストボックスの構造

この構成では、器具から固体空気への熱の伝導をモデル化します。これは実際の構成を再現したものではありませんが、壁の未知なヒートシンク特性を除外し、温度管理された部屋内のULサーマルテスト戦略に似た構成です。

壁と器具を取り囲む空気ボリュームは次の寸法にしてください:

UL指定のテストボックス構造

UL Test SetupのシミュレートにはHardwood構成と同じ寸法を使用します。実際のULテストに忠実なモデルを作成するにはこれを使用します。木製のベースの代わりに、UL 1598で定義されたUL Testボックスを使用します:

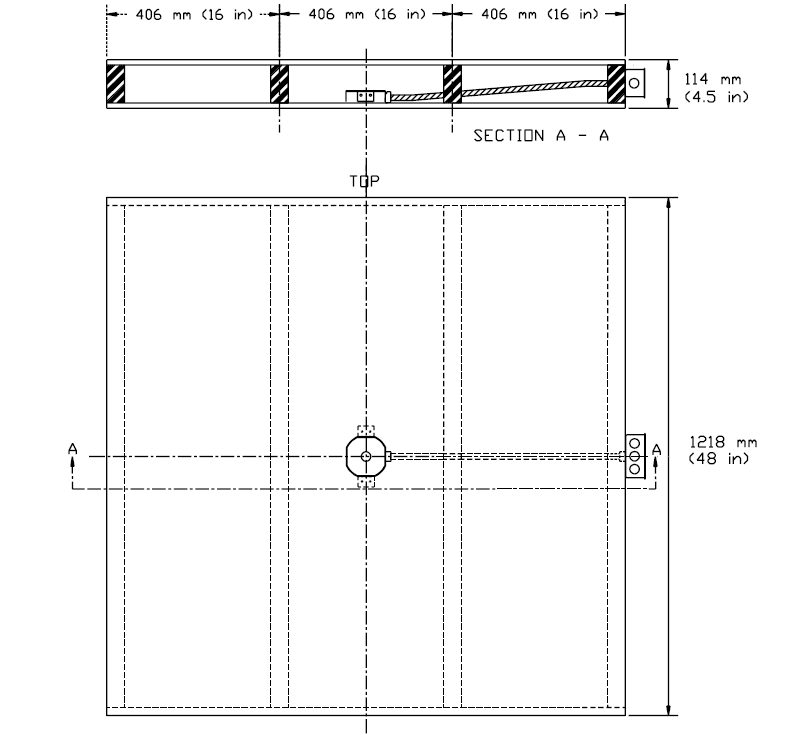
次の図では、最小の D = 8.5 インチ、F = 6 インチを指定しています。(照明がより深い場合にはFの値を大きくします。)上の図は平面図です。下の図は側面図です。

テスト構造を空気ボリュームの中に収めます。テスト構造を取り囲む空気ボリュームは次の寸法にしてください:

境界条件

参考文献: UL 1598

ユニット 1 | バルブ | シーリングマウント