Le réseau de gaines peut prendre de nombreuses formes et tailles différentes. Vous pouvez placer automatiquement des raccords (par exemple, des coudes et des tés) lorsque vous dessinez. Vous pouvez également ajouter des raccords manuellement aux gaines. Pensez à procéder de la sorte notamment lorsque vous utilisez des raccords non spécifiés dans les préférences de positionnement de la gaine.
Après avoir présenté initialement l'équipement mécanique, vous pouvez dessiner le réseau de gaines à raccorder à l'équipement et créer des réseaux. AutoCAD MEP toolset offre de nombreuses fonctions qui rationalisent la conception et le dessin des longueurs de gaine.
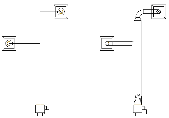
Le processus d'ajout de longueurs de gaine est identique. Vous pouvez ajouter des gaines sous forme d'objets 1D pendant la conception des trajectoires préliminaires, puis les transformer en objets 2D lorsque vous spécifiez leurs propriétés (la taille et le type de connexion, par exemple). Les longueurs de gaine 1D sont représentées sous forme d'une seule ligne tandis que les conduites 2D montrent la géométrie réelle de la gaine même dans les vues isométriques. Il n'est pas initialement nécessaire de dessiner les conduites en tant qu'éléments 1D. Vous pouvez dessiner à tout moment une gaine 2D définie.

A gauche, une vue de dessus d'une longueur de gaine 1D et à droite, une longueur de gaine 2D définie.

Les 3 dimensions sont disponibles pour le routage des longueurs de gaine 1D ou 2D.
Vous pouvez dimensionner les systèmes de gaines à l'aide des outils d'analyse d'ingénierie de AutoCAD MEP toolset. Vous pouvez utiliser l'outil de dimensionnement du système de gaines pour définir la taille du système, puis l'outil de dimensionnement en temps réel des gaines dans la boîte de dialogue Ajouter et Modifier pour calculer la taille de chaque segment.