Viele Leuchten sind an einer vertikalen Wand montiert.


Die Wandmontage-Simulationskonfiguration basiert auf den Richtlinien, die im Prüfverfahren UL1598 für Wandmontage- und Einbau-Konfigurationen enthalten sind. Zur Simulation der natürlichen Konvektion und Temperaturverteilung geben Sie die Wand in ein Luftvolumen. Zum Erstellen der Testbox gibt es, je nach Höhe der Detailtreue bei der physischen Prüfung, mehrere Möglichkeiten. Die Menge an Details im Wand-Testboxmodell legt fest, wie viel Wärme an die Wand geführt wird.
Der Analysebereich sollte auf Basis der Konfiguration der Prüfvorrichtung konstruiert werden. Konstruieren Sie für jede Konfiguration ein Luftvolumen um die Leuchte, um die Luftbewegung aufgrund der natürlichen Konvektion und Wärmeübertragung zu simulieren.
Es gibt drei Möglichkeiten zum Simulieren einer Aufbau-Wandleuchte:
Montieren Sie die Leuchte direkt an eine adiabatische (isolierte) Wand. Da keine Wärme durch die Wand geführt wird, simuliert dieser Ansatz den ungünstigsten Fall, in dem die Wärme nur durch natürliche Konvektion abgeführt wird. Verwenden Sie diese Konfiguration, um schnell Designoptionen für Vergleichsstudien zu simulieren.
Verwenden Sie den Verteilerkasten oder die Lampenhalterungen nicht, da diese Details kaum Auswirkungen auf die Ergebnisse haben und die Netzgröße und Laufzeit erhöhen.

Diese Konfiguration ermöglicht, dass die Wärme von der Leuchte abgeführt wird und an die umgebende Luft durch Konvektion abgegeben wird. Bei dieser Konfiguration wird keine physische Installation nachgebildet, sondern die unbekannte Kühlleistung der Wand entfernt und die UL-Wärmeprüfungsstrategie in einer Kammer mit kontrollierter Temperatur nachgeahmt.
Das Luftvolumen um die Wand und die Leuchte sollte folgende Bemaßungen haben:
![]() | ![]() |
Die UL-Prüfungskonfiguration verwendet dieselben Bemaßungen wie die Hartholzkonfiguration, verwendet jedoch die UL-Testbox anstatt der Vollholzbasis. Verwenden Sie diese Prüfungskonfiguration, um einen physischen Test genau nachzuahmen.
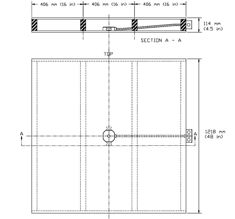
Konstruieren Sie die Wand-Prüfvorrichtung gemäß der Spezifikation UL 1598:

Vereinfachen Sie den achteckigen Anschlusskasten in CAD, um alle Blechdetails zu entfernen.
Schließen Sie die Prüfvorrichtung in ein Luftvolumen ein. Das Luftvolumen um die Prüfvorrichtung sollte folgende Bemaßungen haben:

Der Analysebereich sollte auf Basis der Konfiguration der Prüfvorrichtung konstruiert werden. Konstruieren Sie für jede Konfiguration ein Luftvolumen um die Leuchte, um die Luftbewegung aufgrund der natürlichen Konvektion und Wärmeübertragung zu simulieren.
Es gibt zwei Möglichkeiten zum Simulieren einer Einbau-Wandleuchte:
Diese Konfiguration ermöglicht, dass die Wärme von der Leuchte in unbewegte Luft abgeführt wird. Bei dieser Konfiguration wird keine physische Installation nachgebildet, sondern die unbekannte Kühlleistung der Wand entfernt und die UL-Wärmeprüfungsstrategie in einer Kammer mit kontrollierter Temperatur nachgeahmt.
Das Luftvolumen um die Wand und die Leuchte sollte folgende Bemaßungen haben:

Verwenden Sie dieselben Bemaßungen der Hartholzkonfiguration zur Simulation der UL-Prüfungskonfiguration. Verwenden Sie diese Prüfungskonfiguration, um einen physischen Test genau nachzuahmen. Anstelle einer Hartholzbasis verwenden Sie die UL-Testbox gemäß UL 1598:
In den folgenden Abbildungen: D = mindestens 8.5 Zoll und F = mindestens 6 Zoll. (Verwenden Sie einen größeren Wert für F, wenn die Leuchte tiefer ist.) Die oberen Zeichnungen zeigen eine Ansicht von oben. Die unteren Zeichnungen zeigen eine Seitenansicht:

Schließen Sie die Prüfvorrichtung in ein Luftvolumen ein. Das Luftvolumen um die Prüfvorrichtung sollte folgende Bemaßungen haben:

Referenz: UL 1598