練習 B1: 領域オブジェクトを使用してラスター図形をコピーする

この練習では、REM 設定の確認と REM 領域オブジェクトの領域を行い、1 つのイメージから他のイメージにラスター図形を複写します。

領域オブジェクトは、モノクロ イメージ、グレースケール イメージ、カラー イメージに対して定義できます。

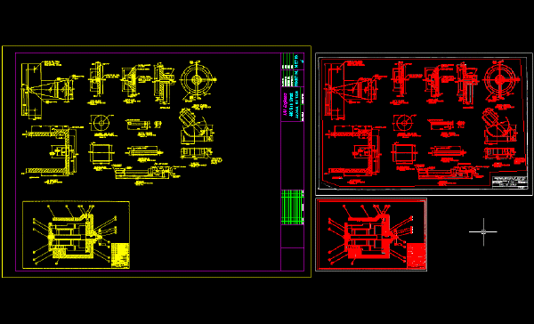
この練習では、次の機械図面をスキャンして作成した 2 つのモノクロ イメージを含む図面を使用して作業します。

REMコマンドを使用して、各イメージ内の図形を選択してから、図面内に既に存在する空のイメージに図形を複写します。後の練習では、REM コマンドを使用して、それらの図形を編集します。

関連する練習

この練習を行う前に、AutoCAD Raster Design ツールセットのオプションが「練習 A1: AutoCAD Raster Design ツールセットのオプションを設定する」で説明したとおりに設定されていることを確認します。

練習

  1. ..¥Program Files¥Autodesk¥ApplicationPlugins¥RasterDesign2022.Bundle¥Contents¥Tutorials¥Tutorial3 フォルダの図面 REM_02.dwg を開きます。

    REM 設定を調べる

  2. [Raster Design オプション]ダイアログ ボックスを表示するには [ラスター][オプション]を選択します。
  3. [REM]タブをクリックし、[REM オブジェクトの色]が[red]に設定されていることを確認します。
  4. [ラスター図形の検出]タブをクリックし、次のように設定されていることを確認します。
    • [最大ギャップ幅]は 10。
    • [ラスター ピック吸着]チェック ボックスがオン。
    • [ピック吸着範囲]は 4。
    • [フロート許容差]は 2。
  5. [OK]をクリックします。
  6. [AutoCAD]ツールバーか、開いているその他の AutoCAD Raster Design ツールセット ツールバーを右クリックし、[ラスター図形処理]ツールバーをクリックして開きます。
  7. [イメージ管理]ツールスペースを表示するには、 [ラスター][イメージ管理]を選択します。 [イメージの挿入]表示を選択します。
  8. REM_02 の横にある + をクリックし、Mech_02a を右クリックして[ズーム]をクリックし、13 個の詳細な図面を含むこのイメージを表示します。

    ポリゴン領域オブジェクトを作成する

  9. [ラスター図形処理] [ポリゴン領域作成]をクリックします。
  10. 詳細図面とその注釈の全体、および右下コーナーにある表題欄の一部を囲むようにポリゴンを描き、[Enter]を押して処理を終了します。

    ポリゴンとその内側のすべての図形は、赤で表示されます。これは、それらが REM 領域オブジェクトの一部として取り込まれたことを示しています。

    領域オブジェクトを調整する

  11. ポリゴン領域をクリックし、REM 領域オブジェクトを選択します。
  12. 右クリックし、[リファイン モード]をクリックします。 領域の境界だけがハイライト表示されます。
  13. イメージの右下コーナーに画面移動し、拡大ズームします。
  14. 領域の境界を選択します。表題欄で中点グリップを選択し、このグリップをドラッグして領域オブジェクトから表題欄を除去します。

    次のサンプルは、表題欄が含まれないように領域オブジェクトを調整した後のイメージを示しています。

  15. 右クリックし、ショートカット メニューから[リファイン モード]を選択します。これで、リファイン モードが非アクティブになりました。

    空のイメージに領域オブジェクトを複写する

  16. 図面全体まで縮小ズームします。
  17. COPY[複写]コマンドを使用して、空のイメージの左上コーナーに領域オブジェクトを複写します。

    長方形領域オブジェクトを作成する

  18. [イメージ管理]で Mech_02b を選択します。右クリックして[ズーム]をクリックし、このイメージを表示します。
  19. [ラスター図形処理] [長方形領域]をクリックします。
  20. イメージ全体(すべての図形、表題欄、および図面枠)を囲むように長方形を描きます。

    長方形とその内側のすべての図形は、赤で表示されます。これは、それらが REM 領域オブジェクトに含まれることを示しています。

    領域オブジェクトを複写する

  21. オブジェクト範囲にズームします。
  22. COPY[複写]コマンドを使用して、他の領域オブジェクトを含むイメージの左下コーナーに、新しく定義した領域オブジェクトを複写します。

    領域オブジェクトをイメージに合成する

  23. 2 つの領域オブジェクトを選択し、右クリックして[ラスター イメージに合成]をクリックします。

    領域オブジェクトをイメージに合成すると、それらは領域オブジェクトではなくなるので、赤で表示されなくなります。ただし、元のイメージのオブジェクトは、領域オブジェクトとして定義されたままです。

  24. 右クリックし、ショートカット メニューから[REM][すべて選択解除]を選択します。

    REM 領域オブジェクトは、元のイメージ内ではもう定義されていません。実際のプロジェクトでは、この時点で新しいイメージ(Mech_new_02)を保存し、元のソース イメージを図面からアタッチ解除できます。

  25. 変更を保存せずに図面を閉じます。