この練習では、断面図ビュー、外壁の吹き出しビュー、パラペットの詳細吹き出しを作成します。
|
作業を開始する前に、GSG_10_views.rvt ファイルをダウンロードします。チュートリアル用の練習ファイルをまだダウンロードしていない場合は、この zip ファイルをダウンロードしてください。
目的
[作成]パネル 
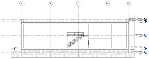
(断面図)をクリックします。

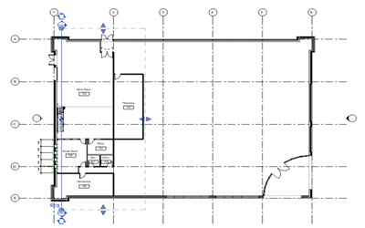
)をクリックして、店舗の部屋 #103 が含まれるように断面図を反転します。
)を上で 2 回クリックして、断面記号(尾)オプションを切り替え、上と下に断面記号(頭)を表示します。


(トリミング領域を非表示)をクリックします。
[作成]パネル 
(吹き出し)をクリックします。

(トリミング領域を非表示)をクリックします。
(吹き出し)をクリックします。

(トリミング領域を非表示)をクリックします。