Pomocí jediné poznámky můžete přidat popisky k více výztužím a sadám výztuží.
Videofilm: Poznámky více výztuží
panel Popisek
Více výztuží
(Zarovnaná poznámka více výztuží)
panel Popisek
Více výztuží
(Lineární poznámka více výztuží)

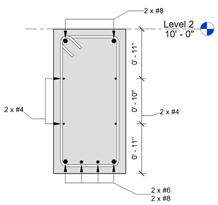
Pomocí poznámek více výztuží můžete vybrat více zarovnaných výztuží a zobrazit kóty mezi referencemi výztuží, stejně jako data parametrů a umístění vzhledem k hostiteli výztuže.