
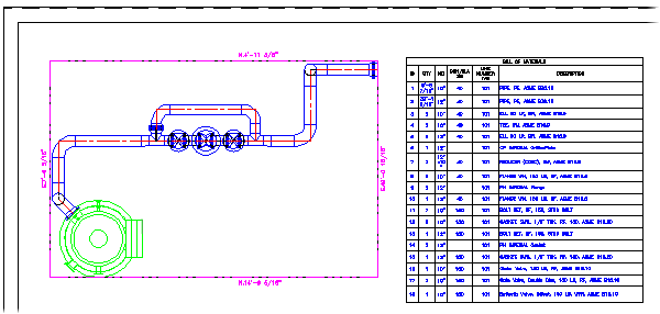
재료 명세서 테이블을 직교 도면에 삽입할 수 있습니다.

BOM 테이블은 직교 뷰에 있는 항목을 나열합니다.
테이블 설정을 사용하여 그룹화 및 특성(열)을 지정할 수 있습니다. 또한 절단 리스트를 포함할지 지정할 수 있습니다.
새 BOM 테이블 설정을 비롯한 직교 설정은 프로젝트 Orthos\Styles 폴더에 저장됩니다. 스타일 폴더를 다른 프로젝트에 복사하여 공유할 수 있습니다.
직교 BOM 설정은 테이블 열 및 그룹화 설정이 등각투영 BOM과 유사합니다. ISO BOM과 마찬가지로 테이블 설정을 제목 블록과 함께 저장할 수 있습니다.
그러나 그리기 및 테이블 영역은 ISO BOM과 달리 지원되지 않습니다.

관리자는 프로젝트에 대한 기본 BOM을 설정할 수 있습니다.
프로젝트 설정의 직교 제목 블록에서 BOM 테이블을 설정할 수 있습니다. 재료 명세서 테이블 템플릿(빈 테이블)을 제목 블록에 배치한 경우 새 직교 도면에서 위치 또는 크기를 묻는 메시지가 표시되지 않습니다.

AutoCAD Plant 3D 2015 이상에서는 직교 뷰에 대한 BOM 테이블을 작성할 수 있습니다. 파이프 및 파이프 지지가 직교 BOM 테이블에 나열됩니다.