Na určitou dobu můžete zobrazit vazby kót a zarovnání v pohledu a vyřešit potíže nebo upravit prvky v modelu. 
  
- V části Zobrazit ovládací panel klikněte na tlačítko  (Zobrazit vazby). 
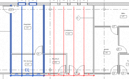
		    Na kreslicí ploše Zobrazit vazby se zobrazí barevné ohraničení, které označuje, že se nacházíte v režimu Zobrazit vazby. Všechny vazby se zobrazí barevně a prvky modelů budou zobrazeny v půltónech (šedé). (Zobrazit vazby). 
		    Na kreslicí ploše Zobrazit vazby se zobrazí barevné ohraničení, které označuje, že se nacházíte v režimu Zobrazit vazby. Všechny vazby se zobrazí barevně a prvky modelů budou zobrazeny v půltónech (šedé).Poznámka: Aby bylo možné snadněji zobrazit vazby v tomto režimu, ujistěte se, zda není vybrána možnost zobrazení Tenké čáry (karta Pohled  panel Grafika    Tenké čáry). 
			  
 
- Vyberte vazbu ke zvýraznění prvků, které jsou zavazbeny. 
		   V následujícím příkladu je vybrána vazba na levé straně a také jsou zvýrazněny dvě zavazbené stěny a dvě zavazbená okna. 
			 
 
		  
- Volitelné: Vazbu můžete odebrat jejím odstraněním nebo odemknutím. 
		    
			 Poznámka: Vazby, které byly přidány v režimu náčrtu pro prvek, se zobrazí v půltónech. Dvojitým kliknutím na prvek zadejte režim náčrtu k úpravě nebo k odstranění vazby. 
			  
- Pod položkou Zobrazit ovládací panel kliknutím na tlačítko  ukončete režim Zobrazit vazby. ukončete režim Zobrazit vazby.