Crée une table de nomenclature ortho.
Ruban : Onglet Vue ortho
Configuration des nomenclatures 
Entrée de commande :
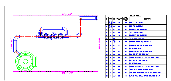
plantorthoplacebom Les invites suivantes s’affichent.
Sélectionnez une fenêtre : sélectionnez une fenêtre ortho.
Sélectionnez la table à placer [Nomenclature/Équipement/Piquages/Acier/Spool] <Nomenclature> : spécifiez la table de nomenclature à créer dans le dessin ortho.
Spécifier le premier coin : spécifiez le coin supérieur gauche de la table de nomenclature de matériel ortho.
Spécifier le deuxième coin : spécifiez la largeur de la table. La hauteur spécifiée est ignorée.
