チュートリアル: Civil 3D モデルを編集する

Civil 3D モデルを編集する

このチュートリアルでは、Project Explorer の編集ツールを使用して、パイプとコリドーにいくつかの設計変更を適用する方法を学習します。

新しい複数パーツのスワップ機能を使用してパイプ ネットワークを編集し、アセンブリ編集ツールを使用してコリドー上の道路を拡幅します。必要に応じて、以前に生成されたレポートを更新します。

基本操作

Autodesk Civil 3D で、標準の Civil 3D サンプル図面、Intro-1.dwg を開きます。このチュートリアルの最初の部分の終了時に、この図面を保存しておきます。

この図面は標準 Civil 3D インストールの一部であり、通常は次のフォルダにあります。

C:\Program Files\Autodesk\AutoCAD 2024\C3D\Help\Civil Tutorials\

オブジェクト セットのレポート更新機能について学習する場合は、このチュートリアルを開始する前に、チュートリアル「オブジェクト セットを使用する」を完了しておくことをお勧めします。この場合、そのチュートリアルの最終結果を次のタスクの開始点として使用する必要があります。

まず、Project Explorer ウィンドウを開きます(まだ開いていない場合)。

  1. Civil 3D のリボンから[アドイン]タブを選択し、Project Explorer ウィンドウを開きます。
  2. Project Explorer ウィンドウで[パイプ ネットワーク]タブを選択します。Storm Sewer Network という単一パイプ ネットワークが表示されます。このチュートリアルではこのパイプ ネットワークを使用します。

複数のパイプと構造物の参照サーフェスを設定する

このチュートリアルでの後のいくつかの手順は、このパイプ ネットワークのすべての構造物とパイプに参照サーフェスが設定されていることに依存しています。Project Explorer を使用すると、1 回の操作でパイプ ネットワークの複数のパーツに参照サーフェスを設定することができます。

  1. [構造物]タブがサブオブジェクト レベルでアクティブになっていることを確認し、構造物リスト内のすべての構造物を選択します。
  2. 右クリック メニューから[参照サーフェスを設定]を選択し、ドロップダウン リストから[First Street - (1)]を選択します。
  3. [パイプ]タブを選択し、パイプ リスト内のすべてのパイプを選択します。
  4. 右クリック メニューから[参照サーフェスを設定]を選択し、ドロップダウン リストから[First Street - (1)]を選択して、選択したすべてのパイプの参照サーフェスを設定します。

パイプ ネットワークの縦断ビューに、シェーディング領域が表示されます。このシェーディング領域は、パイプの土被りの深さの最小範囲と最大範囲を示します。この範囲は、現在割り当てられているパイプ ルール セットから取得され、後でこのチュートリアル内で、パイプの勾配に対する変更によって必要な土被りの深さに違反するかどうかを判別するために使用されます。

パイプ配管を編集する

  1. パイプ ネットワークの縦断ビューのツールバーで、パイプ配管の開始構造物と終了構造物を次のように設定します。
    • 開始構造物: Structure - (2)
    • 終了構造物: Structure - (8)
    • 比較サーフェス: EG
  2. 縦断ビューの鉛直異尺を 1:5 に拡大します。
  3. 以下に示すように、パーツ カテゴリのタブから[パイプ]を選択します。

縦断ビューには、選択した開始構造物と終了構造物の間のパイプ ネットワークを通過する最短のパスを表すパイプ配管が表示されます。

パイプ ネットワーク内の複数のパーツをスワップする

Project Explorer を使用すると、パイプ ネットワークの複数のパーツを 1 回の操作でスワップできます。ここで、このツールを使用してパイプ配管のパイプの直径を変更します。

  1. Project Explorer ウィンドウのパイプ リストで、次のパイプを選択します。
    • Pipe - (5)
    • Pipe - (6)
    • Pipe - (7)
  2. 選択したパイプを右クリックし、右クリック メニューから[パーツをスワップ]を選択します。
  3. [スワップ パーツのサイズ]ダイアログから 750mm RPC コンクリート パイプを選択し、[OK]をクリックします。

  4. Project Explorer ウィンドウのパイプ リストで Pipe - (4)を右クリックし、右クリック メニューから[パーツをスワップ]を選択します。
  5. [スワップ パーツのサイズ]ダイアログから 600mm RPC コンクリート パイプを選択し、[OK]をクリックします。

    パイプ配管が次の図に示すようになります。

パイプ配管に沿ったパイプの勾配を調整する

Project Explorer を使用すると、1 回の操作でパイプ配管全体の勾配を調整できます。次の操作を試してみましょう。

  1. パイプ ネットワークの縦断ビューの設定が次のように設定されていることを確認します。
    • 開始構造物: Structure - (2)
    • 終了構造物: Structure - (8)
    • 比較サーフェス: First Street - (1)
  2. 適用するパイプ勾配の変更を確認しやすくするために、パイプ ネットワークの縦断ビューの鉛直異尺を 1:10 に変更します。
  3. [パイプ ネットワーク]タブのメイン ツールバーで[パイプ配管を編集]ボタンを押します。
  4. [パイプ配管の勾配と標高を編集]ダイアログが開きます。
  5. 目的は、パイプ配管の開始標高を調整することです。ただし、パイプ配管の終端のパイプの標高は保持します。また、すべての中間構造物における各パイプの管頂の標高を維持したまま、すべてのパイプに一定勾配 1.5% を適用する必要があります。

  6. パイプ配管の[コントロール パラメータ]を[パイプ配管の終了標高を保持]に変更します。
  7. [パイプ標高を保持]の方法を[管頂]オプションに変更します。
  8. [パイプ配管の勾配]1.5% に変更します。
  9. [OK]をクリックしてダイアログを閉じ、Project Explorer ウィンドウに戻ります。パイプ配管が更新され、次のような結果になります。

リスト内の 3 つのパイプに違反があることに注意してください。各違反の上にマウス カーソルを合わせると、どの設計ルールに違反しているかを確認できます。

この時点で、パイプ ネットワークにさらに編集を加えて、これらの違反に対処することができます。これらの違反は、Project Explorer または Civil 3D ユーザ インタフェースのどちらで編集を実行するかには関係なく、各設計変更の後で更新されます。

それ以上の編集はこのチュートリアルの範囲外であるため、このチュートリアルのパイプ ネットワーク関連の部分は完了しました。次に、主要道路の幅を修正することにより、コリドーに設計変更を適用します。

まず、このアセンブリに適用した変更が、関連付けられたコリドーにすぐに反映されることを確認します。

  1. Project Explorer ウィンドウで[コリドー]タブを選択します。
  2. コリドー リストで First Street を選択し、[自動再作成]パラメータが表示されるまでリストをスクロールします。このフィールドで既存の[いいえ]値をダブルクリックし、[はい]に設定します。

  3. Project Explorer ウィンドウで[アセンブリ]タブを選択します。
  4. アセンブリ リストで、[一次道路の全横断]を選択します。
  5. このアセンブリのサブアセンブリ リストで、LaneSuperelevationAOR - (19)を選択します。
  6. このサブアセンブリのパラメータが表示され、アセンブリの横断ビューに、選択したサブアセンブリのジオメトリが示されます。
  7. [幅]パラメータをダブルクリックして、値を 3.500 から 6.000 に変更します。
  8. このアセンブリのサブアセンブリ リストで、LaneSuperelevationAOR - (19) (1)を選択し、幅パラメータと同様の変更を行い、値を 6.000 に変更します。
  9. ここで適用した変更は、即座に横断ビューと AutoCAD ビューポートの両方に反映されることに注意してください。
  10. メインの Project Explorer ウィンドウで[コリドー]タブを選択します。
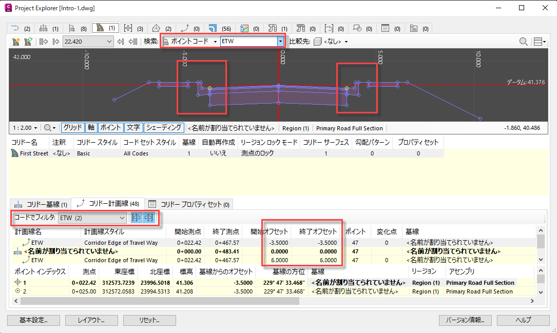
  11. コリドー横断ビューのツールバーで、[検索]ドロップダウン リストから[ポイント コード]を選択し、使用可能なコードのリストから ETW を選択します。これにより、更新された ETW ポイント コードの位置が横断ビュー内でハイライト表示されます。
    ヒント: 複数のポイント コードの位置をハイライト表示するには、このフィールドにカンマ区切りのリストを入力します。ET* などの部分ポイント コードを入力することもできます。
  12. コリドー計画線リストで、下にスクロールしてリストから ETW を検索して選択します。基線のオフセットが 6.000 に設定されていることを確認します。

これで、Civil 3D モデルに対する必要な設計変更が完了しました。ここで、更新された設計が含まれるように、以前に生成したレポートを更新します。

レポートを更新する

Civil 3D で設計変更が行われた後、以前に生成されたレポートや Project Explorer のオブジェクト セット機能によって作成された他の書き出しファイルを、簡単な手順で更新することができます。

このチュートリアルの残りの部分は、チュートリアル「オブジェクト セットを使用する」を以前に完了し、そのチュートリアルの最終結果を前のタスクの開始点として使用した場合にのみ適用できます。

  1. メインの Project Explorer ウィンドウで[オブジェクト セット]タブを選択します。
  2. [すべてのアクションを実行]ボタンをクリックします。これにより、両方のレポートが、パイプ ネットワークとコリドーに適用した最新の設計変更で更新されます。
  3. 更新されたレポートを確認して、変更の結果を参照します。

Project Explorer は、特定の AutoCAD 図面から生成されたすべてのレポートの永続的なレコードを保持します。これらのレコードは、[出力ヒストリ]ウィンドウから確認できます。このダイアログ ボックスには次の 2 つの方法でアクセスできます。

  • Project Explorer ウィンドウの[オブジェクト セット]タブのメイン ツールバーで[ヒストリを表示]ボタンをクリックする。
  • [すべてのアクションを実行]ボタンまたは[選択したアクションを実行]ボタンをクリックした直後に、「[出力ヒストリ]ウィンドウで結果を確認する」オプションを受け入れる。

このダイアログ ボックスから、生成されたすべてのレポートの出力ファイルのパスと名前、およびファイルの作成日とレポートを生成したユーザの名前を確認できます。

リストされた任意のエントリをダブルクリックすると、関連付けられているレポート ファイルが直接開きます。または、リストされた任意のエントリを右クリックして、Windows エクスプローラでファイルの出力パスを開くか、[出力ヒストリ]リストからエントリを削除します。

Project Explorer でのバージョン管理

Project Explorer から生成されるすべてのレポートに、一意のレポート バージョンとレポート リビジョン番号が割り当てられることに注意してください。既定では、これらの値は次の場合に増分されます。

  • レポート バージョンは、AutoCAD の新しいセッションを開始するたびに増分されます。
  • レポート リビジョンは、レポートが更新されるたびに増分されます。

この動作は、Project Explorer の[基本設定]ダイアログから修正できます。このダイアログは、メインの Project Explorer ウィンドウにある[基本設定]ボタンをクリックして開くことができます。