다음 절차에 따라 2D 단면의 수축포장에서 특정 재료 정의가 지정된 구성요소를 제외하십시오.
2D 단면을 작성할 경우 "수축포장"이라는 단면 구성요소를 표시할 수 있습니다. 수축포장은 하나의 해치 패턴을 가진 하나의 구성요소로 결합된 단면선에 의해 절단된 모든 객체 면의 병합입니다. 2D 단면에 자주 사용하는 뷰입니다.
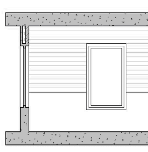
기본적으로 재료 정의가 지정된 모든 구성요소는 수축포장에 포함되어 있습니다. 그러나 수축포장에서 유리와 같은 특정 재료 정의를 제외할 수도 있습니다.

유리가 제외된 2D 단면 수축포장(왼쪽)

를 클릭합니다. 현재 도면이 트리 뷰에 확장된 상태로 스타일 관리자가 표시됩니다.
굵은체로 표시된 화면표시 표현은 현재 화면표시 표현입니다.