덕트 옵션을 사용하여 덕트의 고도 및 치수를 편집할 수 있습니다.
장비를 추가하고, 논리 시스템을 작성한 후, 덕트를 추가해 물리 시스템을 작성하여 덕트 시스템을 작성합니다.
크기 상속 및 고도 상속 도구를 사용하여 기존 덕트장치에 스냅할 때 덕트 크기 및 고도를 일치시킵니다.
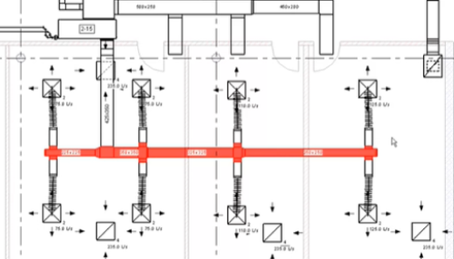
압력 보고서는 시스템을 평가하고 시스템 요소의 손실 계수를 제공합니다.
자리 표시자 덕트를 사용하여 덕트 계단진행의 대략적인 위치를 나타냅니다.
MEP 시스템을 분할하면 Revit에서 시스템 성능이 개선될 수 있습니다.
덕트의 세그먼트 또는 전체 런에 단열재 및 라이닝을 추가하려면 덕트 수정 패널을 사용합니다.
계산 애드인을 사용하여 배관 또는 덕트 압력 강하를 계산합니다.
모델에 전선관을 추가하여 전기 전원 시스템을 작성합니다.
기존 전선관 계단진행에 평행하게 전선관을 배치합니다.
회로 경로를 편집하여 정확한 전기 시스템 계산을 작성합니다.
모델 설정을 정의하고 P&ID 모델러에서 매핑을 관리합니다.
P&ID 태그를 설정하고, 요소를 매핑하고, 모델에 배관 세그먼트를 추가합니다.
Revit에서 도구를 사용하여 MEP 제작 의도를 반영하는 모델을 작성하고 시공 전문업체와 공유할 수 있습니다.
MEP 제작 모델을 작성할 때 특정 댐퍼에 대해 캔버스 내 컨트롤을 사용하여 통합 댐퍼 날개를 추가, 제거 또는 회전할 수 있습니다.
모델에서 행거를 배치하고 컨트롤을 사용하여 다른 MEP 요소와의 간섭을 방지합니다.
특성 팔레트 또는 부품 편집 도구를 사용하여 연결된 제작 부품의 크기를 수정할 수 있습니다.
Revit MEP 요소가 포함된 설계 모델을 LOD 400 MEP 제작 부품을 사용하는 MEP 제작 모델로 변환합니다.
자르기/연장, 빠른 연결 또는 라우팅 및 채우기를 사용하여 덕트장치, 배관 또는 전기 격리에 대한 제작 모델에서 간격을 메울 수 있습니다.
모델에서 점을 클릭하여 연결된 MEP 제작 부품의 계단진행을 작성합니다.
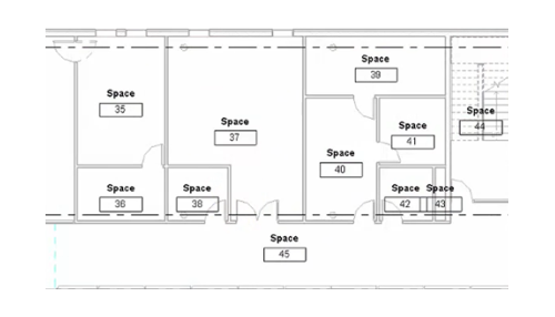
공간 이름 지정 도구를 통해 건축 룸의 이름 및 번호가 MEP 공간에 지정되어 건물 성능 해석에 사용됩니다.