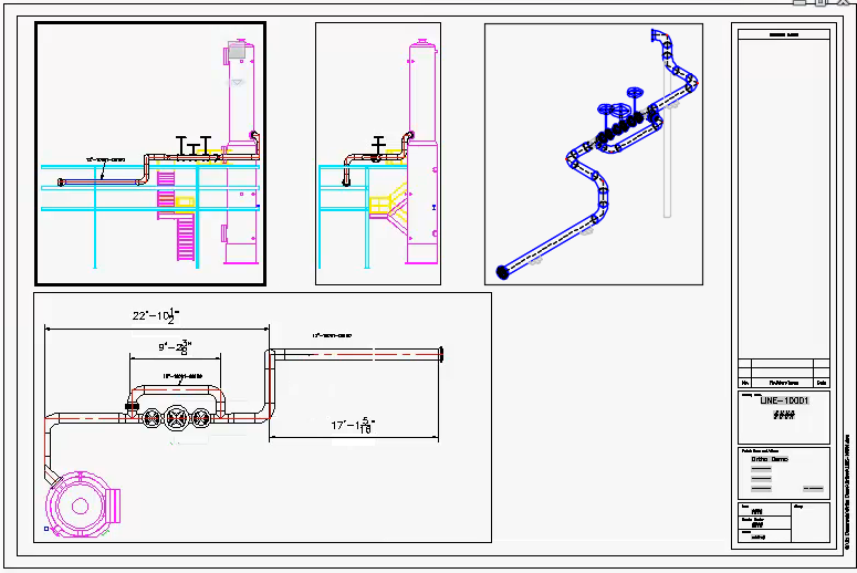
Plant 3D モデルのカスタム オルソビューを作成し、このような投影ビューを 2D 図面に配置することができます。
オルソ図面は DWG ファイルであり、各ファイルには Plant 3D モデルから出力したデータを含むオルソ ビューを複数格納できます。基のモデルが変更された場合は、オルソ図面を更新して、その変更を反映できます。
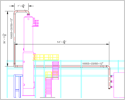
オルソ図面には、Plant 3D モデルの配管、バルブ、機器、および構造用鋼の 2 次元ビューが表示されます。図面には、注釈、寸法、マッチライン(平面図のみ)、配管ギャップを表示することができ、ラインとオブジェクトを表示または非表示にすることもできます。これは、1 つのビューを表示した場合です。


タイトル ブロックを使用してオルソ図面をユーザ仕様にカスタマイズされたテンプレートを設定することも、既定のテンプレートを使用することもできます。
オルソ図面では、他の図面への参照を含むプロジェクト図面を使用できます。プロジェクト以外の外部参照も使用できますが、このような外部参照はグラフィックスとしてのみ表示されます。