パート 6: ドアを配置する

この練習では、プロジェクトにドア タイプをロードし、モデルに内部ドアと外部ドアを追加します。

カテゴリ 新規ユーザ
所要時間 10 分
使用するチュートリアル ファイル GSG_06_place_doors.rvt、M_Door-Exterior-Double.rfa、M_Door-Overhead-Sectional.rfa、M_Door-Passage-Double-Flush-Dbl_Acting.rfa、M_Door-Passage-Single-Flush.rfa

作業を開始する前に、GSG_06_place_doors.rvt、M_Door-Exterior-Double.rvt、M_Door-Overhead-Sectional、M_Door-Passage-Double-Flush-Dbl_Acting および M_Door-Passage-Single-Flush チュートリアル ファイルをダウンロードします。この zip ファイルをダウンロードします(チュートリアル用の練習ファイルをまだダウンロードしていない場合)。

目標

ビデオを見る

ファミリをロードする

  1. GSG_06_place_doors.rvt のプロジェクトを開きます。
  2. [挿入]タブ [ライブラリからロード]パネル (ファミリをロード)をクリックします。
  3. [ファミリをロード]ダイアログで、練習用のファミリ ファイルを保存したフォルダにナビゲートします。
  4. [Ctrl]を押しながら次のファイルを選択して、[開く]をクリックします。
    • GSG_06_M_Door-Exterior-Double.rfa
    • GSG_06_M_Door-Overhead-Sectional.rfa
    • GSG_06_M_Door-Passage-Double-Flush-Dbl_Acting.rfa
    • GSG_06_M_Door-Passage-Single-Flush.rfa

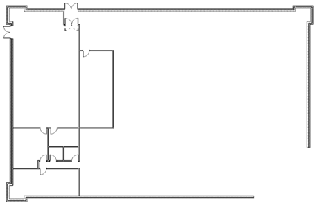
ドアを配置する

  1. [プロジェクト ブラウザ]の[平面図]で[01 - Store Floor]をダブルクリックします。
  2. [建築]タブ [構築]パネル (ドア)をクリックします。
  3. タイプ セレクタで、[M_Door-Passage-Double-Flush-Dbl_Acting]が選択されていることを確認します。
  4. 図に示すように、クリックして店舗の部屋に入口のドアを配置します。
  5. タイプ セレクタで、[M_Door-Exterior-Double 1800 x 2000]を選択します。
  6. 図に示すように、クリックして外壁の下部にドアを配置します。
  7. タイプ セレクタで、[M_Door-Passage-Single-Flush 900 x 200]を選択します。
  8. 図に示すように、追加のドアを配置します。
    注: ドアを配置するときにスイング方向やヒンジの側を変更するには、[Spacebar]を押します。ドアを配置した後に方向を変更するには、 フリップ コントロールをクリックします。
  9. タイプ セレクタで、[M_Door_Overhead Sectional Door]を選択して、店舗の部屋の西壁を配置します。

パート 7: 窓を配置する