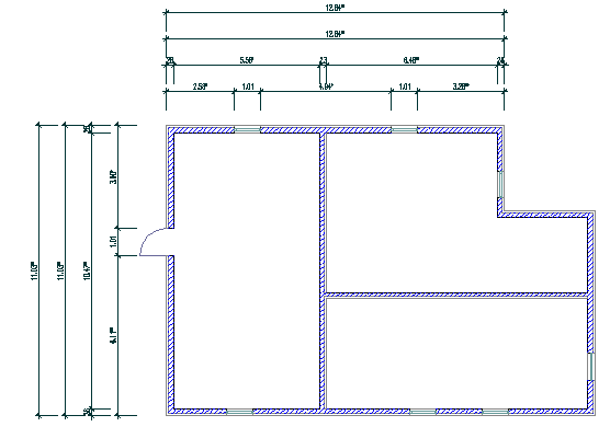
Wymiary zespolone AEC są obiektami opisowymi opartymi na stylu, które są automatycznie aktualizowane wraz ze zmianą zespolonego z nimi obiektu. Styl wymiarowanie AEC definiuje punkty wymiarowe, które określają jakie pomiary są wyświetlane dla każdego obiektu, w którym styl może być zastosowany do wymiarowania.
W poniższym przykładzie długości ścian, szerokości otworów oraz przecięcia ścian są ustalone w stylu jako punkty wymiaru. Poszerzenie drzwi spowoduje uaktualnienie wymiarów, aby uwzględnić nową szerokość.

Można definiować style określonych typów obiektów. Jeden styl AEC może na przykład określać, że wymiary ścian będą dotyczyły długości, maksymalnej szerokości otworów okiennych w ścianach i przecięć ścian. Inny styl wymiarowania AEC elementów bryłowych może określać krawędzie tych elementów i środek jako punkty wymiaru.
Można zdefiniować różne punkty wymiaru w różnych widokach. W rzucie z małą ilością szczegółów można na przykład zwymiarować tylko odcinek między zewnętrznymi obwiedniami budynku, a w rzucie z dużą ilością szczegółów — długości ścian i otwory.
W stylu wymiarowania AEC można zdefiniować maksymalnie trzy łańcuchy wymiarowe, każdy z innymi punktami wymiaru. Pierwszy łańcuch może na przykład dotyczyć długości ścian i otworów, a drugi — komponentów strukturalnych w ścianach złożonych.
W stylu wymiarowania AEC można też określić zakres stosowania indeksów górnych w wymiarach oraz rodzaj linii pomocniczej (stała lub zmienna).