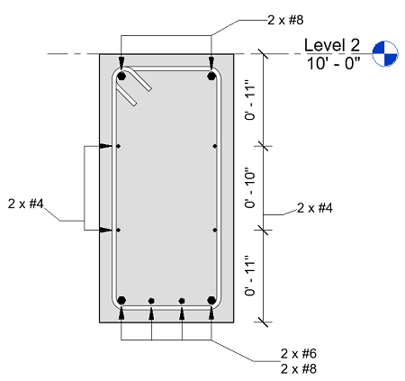
Można oznaczyć wiele elementów zbrojenia i rozkłady zbrojenia z użyciem pojedynczego opisu.
Film: Opisy rozkładu zbrojenia
panel Oznaczenie
Wiele zbrojeń
(Opis wyrównany rozkładu zbrojenia)
panel Oznaczenie
Wiele zbrojeń
(Opis liniowy rozkładu zbrojenia)

Opisy dotyczące wielu zbrojeń umożliwiają wybranie wielu wyrównanych zbrojeń i wyświetlanie wymiarów między odniesieniami do zbrojeń, jak również danych parametrów i położenia względem obiektu nadrzędnego zbrojenia.