Twinmotion にアクセスして、現在のモデルのリアルタイム レンダリングを行います。
コンテキスト リボンで、形状編集中の高さの計測方法を設定します。編集中にカーソル付近に高さが表示されるため、正確な編集が簡単に行えます。
シート上の現在のビューをビュー リストから直接スワップします。
シート レイアウト ツールを使用して、ビューを配置した後にシートのビューを再編成することができます。
[自動関連付け]により、新しく作成された解析要素と重なっている物理要素の識別と、その要素間の関連付けの作成が行われるため、クリックして関連付けを行う必要がなくなります。
曲面解析用パネルを使用して、物理要素を表現します。円弧、楕円、またはこれらの組み合わせを作成および編集して、曲面状の物理要素または要素のグループを表現できます。
このツールで作業面に投影を描画して解析用パネルを定義します。
オンデマンドで設定可能なルールを使用して、解析用モデルから、接続された物理モデルを自動的に作成します。
鉄筋セットを展開する向きを選択するには、右クリック メニューのフリップ オプションを使用します。
ドイツ、オーストリア、スイス向けの構造コンテンツが追加されました。
コミュニティのアイデア: [ギャップを使用して分割]コマンドは、次の MEP 要素で使用できます。
パーツの配置時に、可能な場合、Revit では対応するコネクタにパーツを自動的に方向付けします。
Dynamo Core 2.16 は、グラフのナビゲーションと管理が改善され、新しいジオメトリ ノードや PolyCurve のネイティブ サポートなどが追加されました。
米国測量フィートを使用しているファイルを読み込む/リンクする場合に、単位が自動的に検出されるようになりました。
非常に大きな座標を持つ要素は、ジャーナル ファイルに一覧表示されます。
コミュニティのアイデア: 貼り付けのダイアログに検索機能が追加されました。
ハードウェア設定のチェックでは、ハードウェアがハードウェア アクセラレーションに関する Revit のシステム要件を満たしているかどうかを直接確認します。
コミュニティのアイデア: 部屋タグ、エリア タグ、またはスペース タグが境界の外側に移動されると、タグ引出線が自動で有効になります。
コミュニティのアイデア: ビュー参照を配置すると、詳細番号とシート番号が[対象ビュー]パラメータの末尾に追加されます。
コミュニティのアイデア: 上部と下部の芯材高さをレポートする床タグのラベルが、意匠床要素で機能するようになりました。
[すべてのインスタンスを選択]が、旧リリースよりも多くの要素やカテゴリで使用できるようになりました。
コミュニティのアイデア: [シートの改訂の編集]ボタンは、複数のシートを選択しても使用できます。
鉄骨接合で使用する SqlLocalDB のバージョンを手動で設定できます。
タグのラベルで、要素の構造用途パラメータをレポートできるようになりました。
コミュニティのアイデア: 時間を節約し、必要な部分のみをパブリッシュするために、リンクなしでホスト モデルのみをパブリッシュできます。
モデルの一部を共有メンバーと共有して、共有メンバーがモデル全体にアクセスしなくても作業を完了できるようにします。
PDF の書き出しと印刷セットでのビューとシートの順序をコントロールします。
コミュニティのアイデア: 3D ビューで計測ツールを使用できるようになりました。選択した 2 つのポイント間、またはチェーンに沿って選択したポイント間を計測します。
パフォーマンスを向上させるために、さまざまな領域で多くの変更が行われました。
解析用モデルをコントロールし、あらゆる構造モデルのジオメトリのコンテキストで正確に作成します。
オンデマンドで設定可能なルールを使用して、接続された解析用モデルを自動的に作成します。
ライブラリベースの接合設計の自動化を使用すると、設計意図をより迅速にモデリングでき、さらに構造エンジニアリングと製造ルールを埋め込んで反復を減らすことができます。
ソース ホストから目的のホストに形状駆動鉄筋をコピーして、適合させます。鉄筋は、鉄筋の拘束を一致させることで適合します。
電気設計者は物理的な電気モデル要素を作成せずに建物の電力要件を見積もって仮の概念的な配電システムを定義できるため、最小限のモデリングで概念解析と初期設備のサイズ設定を行うことができます。
コミュニティのアイデア: 生産性を向上させるため、配管、ダクト、電線管、ケーブル ラック、配線、製造用パーツの各 MEP 要素は、解体されてもシステムへの接続と割り当てが維持されます。
Fabrication Data Manager (FDM)はクラウドでホストされるサービスです。これを使用すると、共有メンバーは MEP 製造コンテンツを共有、管理、構築し、Revit ユーザに提供できます。
FormIt と Revit 間の新しいリンク ワークフローを使用して、設計を検討し、反復することができます。
CAD ファイルのリンクと読み込みをサポートするために、複数の改善が行われました。
集計表ツールで、シートでフィルタする機能がサポートされるようになりました。
コミュニティのアイデア: 同じタグを使用して、複数の要素にタグを付けることができます。タグの配置中、または既存のタグにホスト(引出線)を追加する場合は、[ホストを追加/削除]オプションを使用します。
新しいコントロールが追加され、ビューでのナビゲーションのパフォーマンスが向上しました。
作業面に基づくファミリを配置すると、最後に使用したオプションが既定の配置オプションとして保存されます。
コミュニティのアイデア: 3D ビューですべての変位要素にタグを付けます。
ネストされた共有ファミリから要素を選択すると、仮寸法が自動的に表示されます。
コミュニティのアイデア: 2D ビューで要素を変位します。
等高線ラベルは、どの方向からでも「向きを調整」します。
ビュー内で時刻や人工照明のオプションを簡単にコントロールできます。
タグ付け可能なカテゴリのリストが拡張され、設計をより詳細にドキュメント化できるようになりました。
プロジェクト ブラウザ アイコンは、ビューがシート上にあるかどうかを示します。
新しい機能により、形状編集された床での折り曲げ線および分割線のコントロールが容易になりました。自動的に生成された折り曲げ線および分割線を使用すると、モデル内の床の状況を表現できます。
規格化された接合の付属ライブラリを使用し、鉄骨接合に関する国別の規格に基づいて鉄骨接合の配置を自動化します。
AISC の 15 番目のエディションに従って、形鋼テーブルが追加されました。
クラッシュ回避を使用して正確にモデリングするには、鉄筋の端部を基準にしてカプラーを回転させます。
コミュニティのアイデア: ドキュメントを読みやすく、また理解しやすくするため、鉄筋を変位できるようになりました。
コミュニティのアイデア: 同じタグを使用して、複数の鉄筋要素にタグを付けることができます。タグの配置中、または既存のタグにホスト(引出線)を追加する場合は、[ホストを追加/削除]オプションを使用します。
Autodesk Docs または Autodesk Construction Cloud ビューアを使用して、3D 鉄筋ビューを簡単にパブリッシュしたり開いたりでき、モデルの 3D 鉄筋の詳細やビューを調整、検査、共有できます。
3D ビューの詳細レベルが[詳細]に設定されている場合、鉄筋はソリッドとして表示されます。
プロジェクト内のコンクリート要素のコンクリートかぶり割り当てを確認してレポートし、高品質のモデルとドキュメントを提供します。
コミュニティのアイデア: 要素のモデリング中に、リンク モデルの鉄筋との衝突を回避します。
[構造用途]値を「非耐力」に変更して、スペースを定義および分割し、壁自体の重量以外の垂直荷重を支えない構造壁を作成することができるようになりました。
フリー フォーム鉄筋をコピーして、ソース ホストから目的のホストに適合させます。鉄筋は、鉄筋の拘束を一致させることで適合します。
キャンバス内のコントロールを使用して、製造用ダクト部品、配管部品、フリップ継手の高さを変更することができます。
コミュニティのアイデア: 機械制御装置および衛生設備の新しい MEP カテゴリにより、ビューやシートでの要素の表示と外観をより詳細にコントロールできるようになりました。
コミュニティのアイデア: 生産性を向上させるために、ファミリ エディタで作業しながら、面または作業面上の MEP コネクタのホストを変更できます。
Dynamo プレーヤのユーザ インタフェースが一新され、操作性が大幅に向上しました。
Revit 2023 には、スタディの作成の改善、Dynamo のジェネレーティブ デザイン ツールの新しいオプション、Dynamo プレーヤでの一貫性のあるエクスペリエンスなど、Revit のジェネレーティブ デザインに対する最新の更新が組み込まれています。
パラメータ サービスを使用すると、Autodesk Construction Cloud でパラメータ ライブラリを管理できます。
ファミリ、タイプ、ファミリとタイプのパラメータが、集計表の条件付き書式で使用できるようになりました。
ビューでの切り取りが有効になっている既存のカテゴリが 4 つあります。
集計キーを使用して部屋やエリアにパラメータ値を割り当てる場合、キーを削除しても値は保持されます。
コミュニティのアイデア: 新しいリボン ボタンとキーボード ショートカットが追加され、[平面を選択]オプションを使用してビューの作業面をすばやく設定できるようになりました。
要素の書き出しマッピングをコントロールするために使用される IFC パラメータは、既定で要素とタイプに含まれるようになりました。IFC エンティティおよび書き出しに使用される定義済みタイプは、書き出しマッピングのダイアログで変更できます。
ビュー参照を選択する場合、特定のビューのリストを検索することができます。
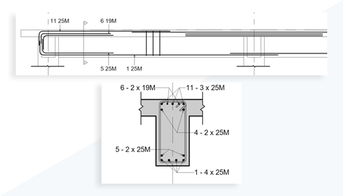
最新の形状コードを使用してコンクリート構造を補強します。
コミュニティのアイデア: 生産性を向上するために、電気機器カテゴリに回路番号プロパティが追加されました。
コミュニティのアイデア: 方向性のあるファミリを作成する際の生産性を向上させるために、一般注釈の方向が各ビューで統一されるようになりました。
コミュニティのアイデア: 立面図タグがその値をレポートする際に使用する高さ基準点を設定できます。
コミュニティのアイデア: MEP 要素の立面図プロパティが更新され、新しいプロパティも追加されて、設計要素と製造要素の整合性が向上しました。
エネルギー解析用モデルの精度、正確性、パフォーマンスを改善しました。
エネルギー解析用モデルの精度と信頼性を高めるために、カーテン ウォールに対して 1 つの大きな開口部サーフェスが作成されるようになりました。
Revit の[ホーム]で、ワークシェアされているクラウド モデル内の要素を、モデルを開かずに放棄します。
コミュニティのアイデア: Revit の[ホーム]を使用してクラウド モデルの旧バージョンを開くか復元する場合、新しいバージョンが維持されます。
塗り潰し領域を、詳細項目を読み込む代わりに、3D ファミリで直接作成できるようになりました。
ビュー フィルタの機能強化により、ビューのフィルタ作成と適用が迅速に行えるようになりました。
コミュニティのアイデア: マテリアルを複製する場合、アセットを複製するか、共有アセットを使用するかを選択できます。
コミュニティのアイデア: 「収納設備」カテゴリに割り当てられたファミリは、ジオメトリを結合することができます。
マテリアル テクスチャとデカールで、サーバに保存されているイメージを使用できるようになりました。
モデル グループと RVT リンクには、タイプおよびインスタンス識別情報パラメータが含まれます。
指摘事項アドインに新しい概要パネルが追加され、指摘事項アドイン内に Autodesk Construction Cloud のデータが表示されるようになりました。