Im Arbeitsbereich Zeichnung in Fusion können Sie mit den Befehlen in der Gruppe Text im Werkzeugkasten Text und Anmerkungen zu Plänen in einer Zeichnung hinzufügen, während Sie Ihren Entwurf dokumentieren.
Sie können die folgenden Befehle verwenden, um Anmerkungen zu einem Plan hinzuzufügen:
Der Befehl Text erstellt ein Textobjekt, um Teile einer Zeichnung zu beschriften, Spezifikationen anzugeben oder Anmerkungen hinzuzufügen.
Klicken Sie, um die gegenüberliegenden Ecken des Textfelds auf dem Plan zu platzieren, geben Sie den Text in das Textfeld ein, und formatieren Sie ihn.
Sie können die folgenden Texteinstellungen anpassen:
Der Befehl Anmerkung erstellt automatisch einen anderen Anmerkungstyp, basierend auf dem Objekttyp, den Sie auf dem aktuellen Plan auswählen.
Sie können folgende Typen von Anmerkungen erstellen:
Der Befehl Führungslinie erstellt ein mehrzeiliges Textobjekt mit einer Führungslinie, die die Anmerkung mit einer Komponente oder einem Element auf dem aktuellen Plan verknüpft.
Der Befehl Bohrungs- und Gewindeinfo erstellt eine Bohrungs- oder Gewindeinfo, die mit einem auf dem aktuellen Plan ausgewählten Bohrungs- oder Gewindeelement verknüpft ist.
Sie können auch Gewindeinfos für Gewindeelemente erstellen, die nicht mit Bohrungselementen verknüpft sind. Dies bedeutet, dass Sie eine Gewindeinfo für ein Gewinde erstellen können, das Sie zu extrudierten Schnitten (Innengewinde) oder extrudierten kreisförmigen Profilen (Außengewinde) hinzugefügt haben.
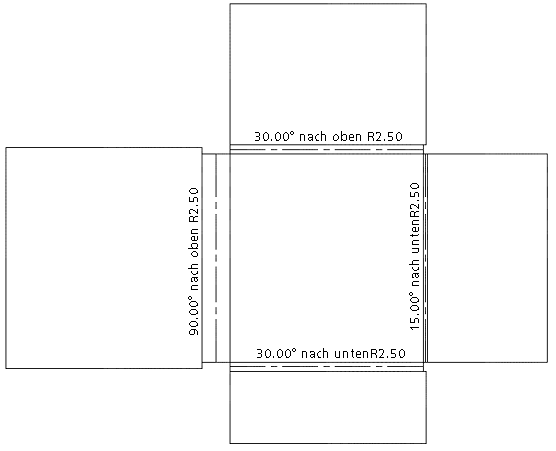
Der Befehl Biegungshinweis erstellt einen Biegungshinweis, der mit einer auf dem aktuellen Plan ausgewählten Blechabwicklungsbiegung verknüpft ist.
Ein Biegungshinweis ist eine Anmerkung ohne Führungslinien, die mit einer ausgewählten Biegungsmittellinie in der Abwicklung eines Blechs verknüpft ist.
Vorgabemäßig befindet sich der Biegungshinweis am Mittelpunkt der Biegungsmittellinie und ist parallel zur Biegungsmittellinie, mit der er verknüpft ist.
