Aktivität 3: Erstellen einer Abwicklung und Fertigungszeichnung
Eine Abwicklung ist die 2D-Form des Blechbauteils, bevor es geformt wird, und wird zum Erstellen von Fertigungszeichnungen verwendet. Abwicklungen zeigen Biegelinien, Biegezonen, Mittellinien sowie die Form des gesamten Körpers unter Berücksichtigung aller abgewickelten Biegungen und Biegekoeffizienten.
Schritte bei dieser Aktivität:
Erstellen Sie eine Abwicklung aus dem Blechkörper.
Wechseln Sie den Arbeitsbereich, und erstellen Sie mithilfe der Abwicklung eine Zeichnungsansicht.

Voraussetzungen
- Aktivität 2 ist abgeschlossen.
Schritte
Erstellen Sie eine Abwicklung aus dem Blechkörper.
- Klicken Sie auf
(Arbeitsbereich Konstruktion > Registerkarte Blech > Gruppe Erstellen > Abwicklung erstellen), um das Dialogfeld Blechregeln zu öffnen.
- Wählen Sie im Ansichtsbereich die stationäre Fläche des Körpers, aus der alle Flansche abgewickelt werden.

- Klicken Sie im Dialogfeld Abwicklung erstellen auf OK, um die Abwicklung zu erstellen und das Dialogfeld zu schließen.

- Klicken Sie auf
(Arbeitsbereich Konstruktion > Registerkarte Abwicklung Volumenkörper > Gruppe Abwicklung fertig stellen > Abwicklung fertig stellen), um zur Registerkarte Blech zurückzukehren.Im Browser wird der Knoten Abwicklung erstellt.

Erstellen Sie eine Zeichnungsansicht aus der Abwicklung.
Anmerkung: Sie müssen die Konstruktion speichern, um die Zeichnung zu erstellen.
- Bewegen Sie im Browser den Mauszeiger über
Abwicklung, und klicken Sie auf das Optionsfeld Abwicklung aktivieren, um die Umgebung Abwicklung zu aktivieren.
- Ändern Sie den Arbeitsbereich von Konstruktion in Zeichnung aus Konstruktion.
Anmerkung: Wenn Sie die Konstruktion nicht gespeichert haben, werden Sie aufgefordert, dies jetzt zu tun.

- Klicken Sie im Dialogfeld Zeichnung erstellen auf OK, um das Dialogfeld zu schließen und den Arbeitsbereich Zeichnung zu aktivieren.
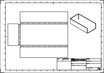
- Klicken Sie im neuen Zeichnungsdokument auf die Position, an der Sie die Erstansicht platzieren möchten.
Anmerkung: Sie können den Maßstab der Zeichnung und andere Attribute im Dialogfeld Zeichnungsansicht ändern.
- Klicken Sie im Dialogfeld Zeichnungsansicht auf OK, um das Werkzeug anzuwenden und das Dialogfeld zu schließen.
Anmerkung: Um eine Darstellung des gefalteten Bauteils hinzuzufügen, klicken Sie auf
(Arbeitsbereich Zeichnung > Gruppe Erstellen > Erstansicht), und klicken Sie auf die Zeichnung, um sie zu platzieren.

Anmerkung: Die Größe der reduzierten Biegezonen wird durch die Abwicklungsregel festgelegt, die in der aktiven Blechregel definiert ist.
Aktivität 3 - Zusammenfassung
Bei dieser Aktivität haben Sie folgende Aufgaben ausgeführt:
- Erstellen einer Abwicklung aus dem Blechkörper.
- Wechseln des Arbeitsbereichs und Erstellen einer Zeichnungsansicht mithilfe der Abwicklung.