Exercice 3 : création d’une mise à plat et d’un dessin pour la fabrication
Une mise à plat est la forme 2D de la pièce en tôle avant sa mise en forme. Elle permet de créer des dessins pour la fabrication. Les mises à plat illustrent les lignes de pliage, les zones de pliage, les traits d’axe centraux et la forme du corps entier avec tous les plis aplatis et en prenant compte des facteurs de pliage.
Dans cet exercice, vous allez :
Conditions préalables
- L’exercice 2 est terminé.
Étapes
Créez une mise à plat du corps en tôle.
- Cliquez sur
(espace de travail Conception > onglet Tôlerie > groupe de fonctions Créer > Créer une mise à plat) pour ouvrir la boîte de dialogue Règles de tôlerie.
- Dans la zone de dessin, sélectionnez la face fixe du corps à partir de laquelle tous les bords tombés sont dépliés.

- Dans la boîte de dialogue Créer une mise à plat, cliquez sur OK pour créer la mise à plat et fermer la boîte de dialogue.

- Cliquez sur
(espace de travail Conception > onglet Solide de mise à plat > groupe de fonctions Terminer la mise à plat > Terminer la mise à plat) pour revenir à l’onglet Tôlerie.Un nœud Mise à plat apparaît dans le navigateur.

Créez une vue de dessin à partir de la mise à plat.
Remarque : vous devez enregistrer la conception afin de créer votre dessin.
- Dans le navigateur, placez le curseur sur
Mise à plat et cliquez sur la case d’option Activer la mise à plat pour activer l’environnement Mise à plat.
- Changez d’espace de travail et passez de Conception à Dessin à partir de la conception.
Remarque : si vous n’avez pas enregistré votre conception, vous êtes invité à le faire maintenant.

- Dans la boîte de dialogue Créer un dessin, cliquez sur OK pour fermer la boîte de dialogue et activer l’espace de travail Dessin.
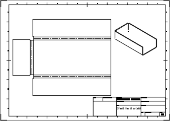
- Dans le nouveau document de dessin, cliquez à l’emplacement où vous souhaitez placer la vue de base.
Remarque : vous pouvez modifier l’échelle du dessin et d’autres attributs dans la boîte de dialogue Vue de dessin.
- Dans la boîte de dialogue Vue de dessin, cliquez sur OK pour appliquer l’outil et fermer la boîte de dialogue.
Remarque : pour ajouter une représentation du corps plié, cliquez sur
(Espace de travail Dessin > Groupe de fonctions Créer > Vue de base), puis cliquez sur le dessin pour la placer.

Remarque : la taille des zones de pliage aplaties est déterminée par la règle de dépliage définie dans la règle de tôlerie active.
Résumé de l’exercice 3
Dans cet exercice, vous avez :
- créé une mise à plat du corps en tôle ;
- changé d’espace de travail et créé une vue de dessin à l’aide de la mise à plat.