Pomocí nástroje Zobrazit skryté hrany podle prvku můžete zobrazit modelové prvky a prvky detailů, které jsou zakryty jinými prvky pouze v aktivním pohledu.
Nástroj Zobrazit skryté hrany podle prvku nabízí přepsání grafického zobrazení jednotlivých prvků v aktuálním pohledu. Tento nástroj lze použít pro prvky, jejichž kategorie obsahují podkategorii Skryté hrany.
Poznámka: Nástroj Zobrazit skryté hrany podle prvku není k dispozici pro:
- perspektivní pohledy,
- pohledy, jejich parametr Zobrazit skryté hrany je nastaven na hodnotu Všechny nebo Žádné. (Musí být nastaven na možnost <Podle disciplíny>.),
- prvky v připojených modelech,
- pohledy aplikaceRevit MEP nebo pro pohledy v aplikaci Autodesk Revit, když je parametr Disciplína nastaven na možnost Elektrické, Mechanické nebo Instalace.
Vchod je například umístěn v jižním bokorysu a vy chcete zobrazit obrys tohoto vchodu pomocí skrytých čar v severním bokorysu.
- Otevřete pohled, ve kterém chcete zobrazit skryté čáry u zakrytého prvku.
- (V případě potřeby) Chcete-li zobrazit vlastnosti pohledu na paletě Vlastnosti, klikněte pravým tlačítkem myši do prázdné oblasti pohledu a poté vyberte příkaz Vlastnosti.
- Na paletě Vlastnosti pro možnost Zobrazit skryté hrany vyberte položku <Podle disciplíny>.
Poznámka: Skryté hrany zadané pomocí nástroje Zobrazit skryté hrany podle prvku se zobrazí, pouze když je parametr pohledu Zobrazit skryté hrany nastaven na možnost <Podle disciplíny>.
- Na ovládacím panelu pohledu klikněte na možnost Styl zobrazení: Drátový model.
Styl Drátový pohled umožňuje vybrat skryté prvky, které chcete zobrazit.
- Klikněte na kartu Pohled
panel Grafika
(Zobrazit skryté hrany podle prvku).
- (Volitelné) Chcete-li zobrazit skryté čáry pro více prvků, na panelu Možnosti vyberte položku Vícenásobný výběr.
- Vyberte prvek, který zakrývá jiný prvek.
- Vyberte jeden nebo více zakrytých prvků.
- Na ovládacím panelu Pohled vyberte u položky Styl zobrazení jiný styl než Drátový pohled.
Zakryté hrany a čáry těchto prvků budou zobrazeny jako skryté čáry.
- (Volitelné) Chcete-li obrátit účinky tohoto nástroje, změňte styl zobrazení na Drátový pohled a klikněte na kartu Pohled
panel Grafika
(Odstranit skryté hrany podle prvku).
Potom vyberte prvek, který skryje zakrytý prvek, vyberte zakryté prvky a znovu změňte styl zobrazení.
- Nástroj Skryté hrany ukončete kliknutím na tlačítko Upravit.
Chcete-li změnit styly použité k zobrazení skrytých čar v celém projektu, použijte dialog Styly objektu.
Chcete-li změnit styly použité k zobrazení skrytých čar pouze v tomto pohledu, použijte dialog Viditelnost/Zobrazení.
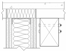
Příklad: zobrazení skrytých čar pro komponenty detailů
Na následujícím příkladu jsou zobrazeny výsledky po použití nástroje Zobrazit skryté hrany a výběru sloupku 4 × 6 a šroubu. Skryté čáry u jednoho šroubu se zobrazí, zatímco čáry u druhého šroubu jsou zakryté.

Poznámka: Objekty musí být ve správném pořadí. Není možné skrýt čáry šroubu, který se nachází nad sloupkem 4×6. Aby byl šroub zakrytý, je nutné jej nejprve přenést pod sloupek 4×6. Chcete-li u šroubu zobrazit skryté čáry, vyberte sloupek 4×6 a poté vyberte šroub.