Свойство Категория определяет, как на виде отображаются элементы, относящиеся к категориям.
Свойство Категория используется для управления следующими параметрами:
Свойство Категория влияет на виды при использовании как единой модели, содержащей несколько категорий, так и модели, связанной с другими моделями, относящимися к определенной категории.
Это свойство можно также использовать для организации видов в Диспетчере проекта. См. раздел Организация видов в Диспетчере проекта.
Для настройки свойства Категория для вида выберите название вида в Диспетчере проекта или откройте требуемый вид. Свойство Категория находится на палитре свойств в разделе Графика. Выберите значение из списка.
Ниже приведены примеры, основанные на модели, в которой следующий элемент является плоскостью разреза уровня 1. Зеленая стрелка на плоскости разреза обозначает полный секущий диапазон соответствующих видов в плане. Синяя стрелка обозначает основной секущий диапазон, расположенный выше потолка в камере и ниже уровня 1. Оранжевая стрелка обозначает глубину проецирования. (См. раздел Секущий диапазон.) Для видов в плане, приведенных ниже в качестве примера, задан высокий уровень детализации, с помощью чего в целях наглядности повышается качество отображения механизмов, электрооборудования и трубопроводов.

Для лучшего понимания того, как свойство Категория влияет на виды, можно загрузить модель: view_discipline_example.rvt
При создании вида на основе имеющегося вида, новый вид наследует категорию исходного. Это правило применяется к фрагментам, разрезам, фасадам и повторяющимся видам.
Например, при открытии вида в плане несущих конструкций (вид в плане, свойству Категория которого присвоено значение Несущие конструкции) для создания разреза вида в плане можно использовать инструмент Разрез. Свойству Категория нового вида в разрезе также присваивается значение Несущие конструкции.
Марки видов (символы, используемые для обозначения разрезов, фасадов и фрагментов) отображаются на виде только в том случае, если категория текущего вида соответствует категории целевых видов. См. примеры ниже.
Если для свойства Категория задано значение Архитектура:
К примеру, на виде отображаются архитектурные колонны, несущие колонны, а также механизмы, электрооборудование и элементы трубопроводов.
Примеры. На архитектурном плане этажа:
На одной стороне стены обнажены кабельные лотки. На другой стороне стены кабельные лотки загорожены архитектурным защитным слоем.
Марка отображается для вида в разрезе, свойству Категория которого присвоено значение Архитектура. На плане не отображаются марки видов, относящихся к другим категориям.
Если свойству Категория присвоено значение Несущие конструкции:
К примеру, на виде отображаются архитектурные колонны, несущие колонны, а также механизмы, электрооборудование и элементы трубопроводов.
Примеры. На следующих видах в плане несущих конструкций:
Ненесущие стены не отображаются. (Сравните с архитектурным планом, показанным выше.)
Марка отображается для вида в разрезе, свойству Категория которого присвоено значение Несущие конструкции. На плане не отображаются марки видов, относящихся к другим категориям.
Невидимые линии служат для отображения элементов несущего каркаса под перекрытием, так как секущий диапазон плана расположен ниже уровня 1.

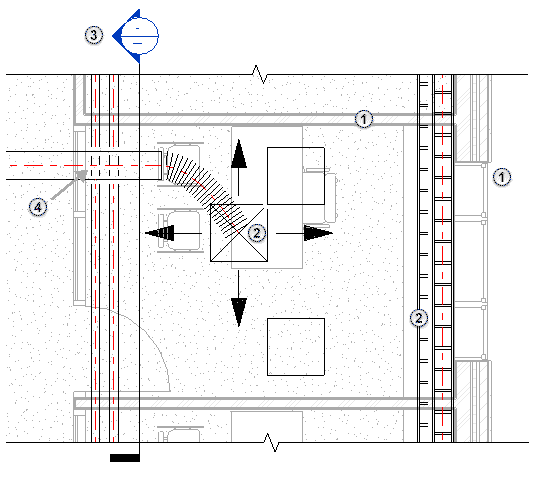
Если свойству Категория присвоено значение Механизмы, Электрооборудование или Сантехника:
Примеры. На виде в плане механизмов:
Архитектурные элементы и элементы несущих конструкций (стены, двери, окна, мебель) отображаются в полутонах на основе секущего диапазона. Элементы потолка на виде не отображаются.
Механизмы, трубопроводы и электрооборудование отображаются в соответствии с их конфигурациями, настроенными в диалоговом окне "Стили объектов". Эти элементы накладываются на другие элементы вне зависимости от их фактического положения в модели по вертикали.
Марка отображается для вида в разрезе, для свойства Категория которого задано значение Механизмы. На плане не отображаются марки видов, относящихся к другим категориям.
На виде отображаются невидимые линии механизмов, электрооборудования и трубопроводов.

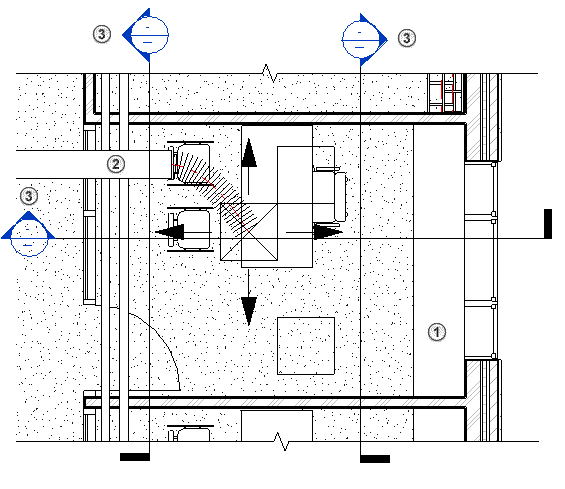
Если свойству Категория присвоено значение Координация:
К примеру, на виде отображаются архитектурные колонны, несущие колонны, а также механизмы, электрооборудование и элементы трубопроводов.
Некоторые механизмы, трубопроводы и электрооборудование в пределах секущего диапазона отображаются независимо от того, пересекает ли их секущая плоскость.
Кроме того, механизмы, трубопроводы и электрооборудование, расположенные выше секущей плоскости, отображаются поверх других элементов. Порядок построения таких элементов определяется относительной высотой уровня вида. Если эти элементы расположены ниже секущей плоскости, порядок их построения зависит от расстояния до секущей плоскости.
Примеры. На виде в плане координаций:
Элементы всех категорий отображаются на виде в соответствии с секущим диапазоном.
Механизмы, трубопроводы и электрооборудование накладываются на другие элементы в соответствии с описанными выше правилами.
Марки видов в разрезе отображаются для всех категорий.
