Nell'area di disegno, è possibile visualizzare tutti gli elementi che non sono stati creati nel workset attivo in grigio.
Gli elementi provvisori, quali quote temporanee e controlli, non vengono visualizzati in grigio. Questa opzione non ha alcun effetto sulla stampa, ma consente di evitare di aggiungere elementi al workset sbagliato.
Come distinguere visivamente gli elementi del workset attivo
gruppo Gestione collaborazione
In alternativa, fare clic sulla scheda Collabora
gruppo Gestione collaborazione
(Visualizza in grigio workset non attivi).
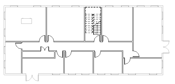
L'immagine seguente mostra la pianta del pavimento del progetto in cui il workset attivo è Layout interno mentre tutti gli altri workset sono visualizzati in grigio.

L'immagine seguente mostra la pianta del pavimento del progetto in cui il workset attivo è Layout apparecchio elettrico mentre tutti gli altri workset sono visualizzati in grigio.
