この練習では、REM 設定の確認と REM 領域オブジェクトの領域を行い、1 つのイメージから他のイメージにラスター図形を複写します。
領域オブジェクトは、モノクロ イメージ、グレースケール イメージ、カラー イメージに対して定義できます。
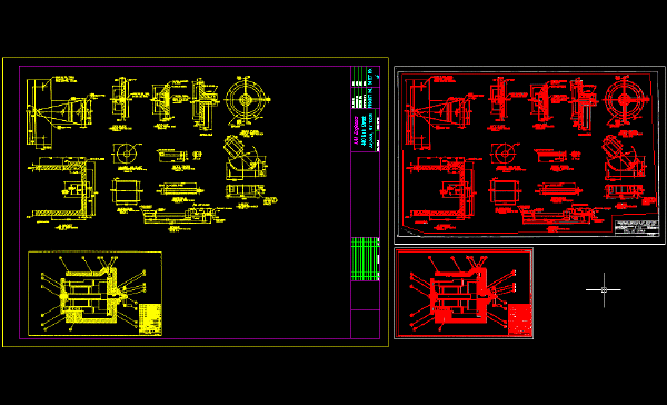
この練習では、次の機械図面をスキャンして作成した 2 つのモノクロ イメージを含む図面を使用して作業します。
REMコマンドを使用して、各イメージ内の図形を選択してから、図面内に既に存在する空のイメージに図形を複写します。後の練習では、REM コマンドを使用して、それらの図形を編集します。
この練習を行う前に、AutoCAD Raster Design toolsetのオプションが「練習 A1: AutoCAD Raster Design Toolsetのオプションを設定する」で説明したとおりに設定されていることを確認します。
REM 設定を調べる
[REM]パネル
ダイアログ ボックス ランチャー(
[管理と表示]パネル
[管理]
をクリックします。[イメージの挿入]表示を選択します。
ポリゴン領域オブジェクトを作成する
[REM]パネル
[領域を作成]ドロップダウン メニュー
[ポリゴン領域]
をクリックします。

ポリゴンとその内側のすべての図形は、赤で表示されます。これは、それらが REM 領域オブジェクトの一部として取り込まれたことを示しています。
領域オブジェクトを調整する
次のサンプルは、表題欄が含まれないように領域オブジェクトを調整した後のイメージを示しています。

空のイメージに領域オブジェクトを複写する

長方形領域オブジェクトを作成する
[REM]パネル
[領域を作成]ドロップダウン メニュー
[長方形領域]
をクリックします。

長方形とその内側のすべての図形は、赤で表示されます。これは、それらが REM 領域オブジェクトに含まれることを示しています。
領域オブジェクトを複写する

領域オブジェクトをイメージに合成する
領域オブジェクトをイメージに合成すると、それらは領域オブジェクトではなくなるので、赤で表示されなくなります。ただし、元のイメージのオブジェクトは、領域オブジェクトとして定義されたままです。

[すべて選択解除]を選択します。
REM 領域オブジェクトは、元のイメージ内ではもう定義されていません。実際のプロジェクトでは、この時点で新しいイメージ(Mech_new_02)を保存し、元のソース イメージを図面からアタッチ解除できます。