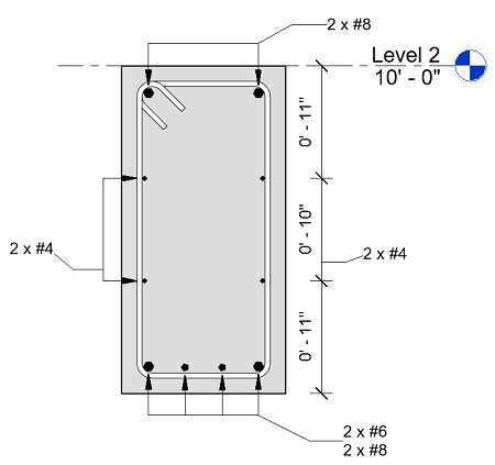
Identifique múltiplos vergalhões e conjuntos de vergalhões definidos com uma única anotação.
Vídeo: Anotações de múltiplos vergalhões
painel Identificador
Múltipos vergalhões
(Anotação alinhada de múltiplos vergalhões).
painel Identificador
Múltipos vergalhões
(Anotação linear de múltiplos vergalhões).

Com anotações de múltiplos vergalhões, é possível selecionar vários vergalhões alinhados e exibir as cotas entre as referências do vergalhão, bem como os dados do parâmetro e o posicionamento com respeito ao hospedeiro do vergalhão.