访问 Twinmotion 以实时渲染当前模型。
在上下文功能区中设置形状编辑期间高程的测量方式。在编辑过程中,高程会显示在光标附近,从而更易于准确编辑。
直接从视图列表交换图纸上的当前视图。
在放置视图后,使用图纸布局工具可帮助您重新组织图纸上的视图。
“辅助关联”会标识与新创建的分析图元重叠的物理图元并在它们之间创建关联,而无需额外单击。
曲面分析面板可用于表示物理图元。可以创建和编辑圆弧、椭圆或两者的组合,来表示曲面物理图元或图元组。
使用此工具以通过将分析面板的投影绘制到工作平面来定义分析面板。
使用可按需配置的规则,从分析模型自动创建连接的物理模型。
要选择钢筋集展开的方向,请使用快捷菜单中的“翻转”选项。
为德国、奥地利和瑞士添加了其他结构内容。
社区想法: 可以对以下 MEP 图元使用“用间隙拆分”命令:
在放置构件期间,Revit 会自动将构件定向到匹配的连接件(如果可能)。
Dynamo Core 2.16 具有更好的图形导航和管理、新的几何图形节点和原生 PolyCurve 支持等功能。
使用美制测量英尺导入/链接文件时,现在会自动检测到单位。
具有非常大的坐标的图元将列在日志文件中。
社区想法: 已向“粘贴”对话框中添加了搜索功能。
硬件设置检查可直接确认硬件是否满足 Revit 的硬件加速系统要求。
社区想法: 当房间、区域或空间标记移动到边界之外时,“标记”引线会自动启用。
社区想法: 放置视图参照时,详图编号和图纸编号会附加到其“目标视图”参数的末尾。
社区想法: 报告顶部和底部核心高程的楼板标记中的标签现在可与建筑楼板图元一起使用。
相较于以前的版本,“选择所有实例”现在可用于更多图元/类别。
社区想法: 当选择多张图纸时,“图纸上的修订编辑”按钮仍然可用。
可以手动配置钢结构连接要使用的 SqlLocalDB 版本。
标记中的标签现在可以报告图元的“结构用途”参数。
社区想法: 为了节省时间并仅发布所需内容,可以仅发布不带链接的主体模型。
与协作者共享模型的某些部分,以便他们无需访问整个模型即可完成其工作。
控制 PDF 导出和打印集中视图和图纸的顺序。
社区想法: 现在,可以在三维视图中使用测量工具。测量两个选定点或沿链的选定点之间的距离。
为了提高性能,对不同的各个方面进行了多项更改。
控制分析模型,并在任何结构物理模型几何图形的上下文中准确创建它。
使用可按需配置的规则自动创建连接的分析模型。
使用基于库的连接设计自动化功能以更快地对设计意图建模,同时嵌入结构工程和制造规则以减少迭代。
将形状驱动的钢筋从源主体复制到目标主体并进行调整。通过匹配钢筋约束来调整钢筋。
电气工程师无需创建物理电气模型图元即可估算建筑电力需求并定义初步概念配电系统,从而以最少的建模实现概念分析和初始设备尺寸调整。
社区想法: 为了提高工作效率,以下 MEP 图元在拆除后仍会保持处于连接状态并指定给其系统:管道、风管、套管、电缆桥架、导线和预制构件。
制造数据管理器 (FDM) 是一种云托管服务,使协作者可以共享、管理和构建 MEP 制造内容以交付给 Revit 用户。
借助 FormIt 和 Revit 之间的新链接工作流,探索和迭代设计。
已进行多项改进,以支持链接/导入 CAD 文件。
现在,明细表工具支持“按图纸过滤”功能。
社区想法: 可以使用相同标记来标记多个图元。在放置标记或将其他主体(引线)添加到现有标记期间,可以使用“添加/删除主体”选项。
已添加一个新控件,来提高视图中的导航性能。
放置基于工作平面的族中的图元时,上次使用的选项会保存为默认放置选项。
社区想法: 在三维视图中标记所有位移图元。
从嵌套和共享族中选择图元时,临时尺寸标注会自动显示。
社区想法: 在二维视图中位移图元。
等高线标签在任何方向上都“保持可读性”。
方便控制视图中一天中的时间和人工照明选项。
可标记类别列表已扩展,可帮助您更全面地记录设计。
项目浏览器图标指示视图是否在图纸上。
新功能可以更轻松地控制形状已编辑楼板上的折叠线和拆分线。使用自动生成的折叠线和拆分线,来表示模型中的楼板条件。
使用标准化连接的即时可用库,可根据钢结构连接的国家标准来自动放置钢结构连接。
根据第 15 版 AISC 新增了型钢表。
相对于杆件端点旋转接头,以实现精确建模并避免碰撞。
社区想法: 现在,可以位移钢筋,以使文档更易于阅读和理解。
社区想法: 可以使用相同标记来标记多个钢筋图元。在放置标记或将其他主体(引线)添加到现有标记期间,可以使用“添加/删除主体”选项。
使用 Autodesk Docs 或 Autodesk Construction Cloud 查看器轻松发布和打开三维钢筋视图,以协调、检查和共享模型的三维钢筋详图或视图。
如果三维视图的详细程度设置为“精细”,则钢筋将显示为实体。
检查并报告项目中混凝土图元的混凝土保护层指定,以交付高质量的模型和文档。
社区想法: 在对图元建模时,请避免与链接模型中的钢筋发生冲突。
现在,可以将“结构用途”值更改为非承重,以创建用于定义和分割空间并且仅支撑它们自己的重量而不支撑其他垂直负荷的结构墙。
将自由形式钢筋从源主体复制到目标主体并进行调整。通过匹配钢筋约束来调整钢筋。
可以使用画布内控件,来更改预制风管和管道的标高以及翻转管件。
社区想法: 机械控制设备和管道设备的新 MEP 类别为视图和图纸中图元可见性和外观提供了更好的控制。
社区想法: 为了提高工作效率,可以在族编辑器中工作时变更面或工作平面上 MEP 连接件的主体。
Dynamo 播放器用户界面已实现现代化,其中包含多项令人兴奋的可用性改进。
Revit 2023 包含 Revit 中的衍生式设计的最新更新,包括对分析创建的改进、Dynamo 中衍生式设计工具的新选项以及 Dynamo 播放器的一致体验。
参数服务允许使用 Autodesk Construction Cloud 管理参数库。
“族”、“类型”以及“族和类型”参数已启用,可用于明细表的条件格式。
在视图中,已启用要剖切的四个现有类别。
当使用关键字明细表将参数值指定给房间和面积时,值将在删除关键字时予以保留。
社区想法: 添加了新的功能区按钮和键盘快捷键,以便可以使用“拾取平面”选项快速地设置视图的工作平面。
默认情况下,控制图元导出映射的 IFC 参数包含在图元和类型中。使用“导出映射”对话框,可以更改用于导出的 IFC 实体和预定义类型。
选择视图参照时,可以在列表中搜索特定视图。
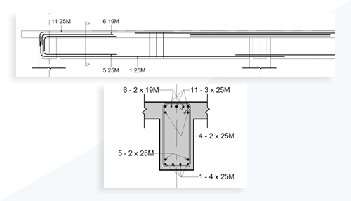
使用最新的形状规范来加固混凝土结构。
社区想法: 为了提高工作效率,在“电气设备”类别中添加了“线路编号”属性。
社区想法: 为了提高创建方向族时的工作效率,常规注释的方向现在在每个视图中都是一致的。
社区想法: 可以设置立面标记报告其值的高程基点。
社区想法: MEP 图元的标高属性已更新并添加了新的属性,以提高设计和预制图元的一致性。
能量分析模型的准确性、精度和性能已得到提高。
为了提高能量分析模型的准确性和可靠性,现在会为幕墙创建了一个大的洞口表面。
使用“Revit 主页”可放弃云工作共享模型中的图元,而无需打开模型。
社区想法: 使用 Revit 主页打开或恢复以前版本的云模型时,将保留更高版本。
现在,填充区域可以直接在三维族中创建,而不是导入详图项目。
使用视图过滤器增强功能,可以更快速地创建过滤器并将其应用于视图。
社区想法: 复制材质时,可以选择复制资源或使用共享资源。
社区想法: 已指定了“橱柜”类别的族可以连接其几何图形。
现在,材质纹理和贴花可以使用存储在服务器上的图像。
模型组和 RVT 链接包括“类型”和“实例标识数据”参数。
“Issues”附加模块中添加了新的“概述”面板,从而在“Issues”附加模块中提供了其他 Autodesk Construction Cloud 数据显示。