You can use the rub (Remove) and Crop commands to remove selected areas of bitonal, grayscale, and color images. Rubs and crops permanently alter an image.
-
Rub changes the removed pixels to the current transparent color for the image. The rubbed areas become transparent if background transparency is enabled for the image. To rub image data, on the ribbon, click
Raster Tools tab
Edit panel and then one of the options from the
Remove drop-down menu, or enter one of the following commands:
iremove,
irubarc,
irubcirc,
irubcircle,
irubdiag,
irubline,
irubpline,
irubpoly, or
irubrect.
-
Crop deletes pixel data outside the selected boundary area. If a crop boundary is not rectangular, the area between the crop boundary and the rectangular image frame is filled with the transparent color. To crop image data, on the ribbon, click
Raster Tools tab
Edit panel and then one of the options from the
Crop drop-down menu, or enter one of the following commands:
icropcirc,
icropdiag,
icropline,
icroppoly, or
icroprect.
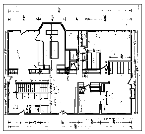
Rub and crop boundaries can be composed from many different shapes: circles, rectangles, lines, arcs, and polygons. The boundaries can encompass more than one image at a time. In the cropped floorplan illustration, note that the size of the image frame is automatically adjusted when you crop an image.
![]() |
![]() |
![]() |
|
Original floorplan image |
Areas rubbed from floorplan |
Cropped floorplan |
Some key points about rubs and crops are as follows:
- When two images are on top of each other and you rub or crop the visible image, both images are modified. Lock the layer an image frame is on to prevent the image from being modified.
- Rubs and crops do not affect vectors in the rub or crop area. The commands affect only raster data.
- Rubs create either transparent or solid regions, depending on the state of background transparency in the image.
- A crop affects only the images you touch with the crop boundary. No images outside this boundary are affected.
- You can use the autorub command to set the rub/crop line width, as well as to turn autorub on or off.


