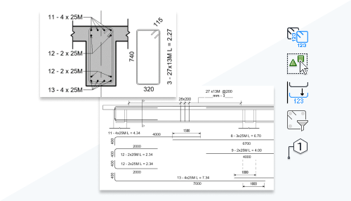
Add bending details to your reinforcement drawings to create accurate bar bending and installation instructions.
You can place bending details in plan, section, and elevation views, inside or outside the view crop region using the dedicated tools in the ribbon. Modify the parameters for rebar bending details in order to best fit your reinforcement drawing needs.

This feature was suggested by customers on the
Ideas forum and is described on the
product road map.
