구성 2: 벽 장착형 조명

여러 광원 장치가 수직 벽에 장착되어 있습니다.

벽 장착형 시뮬레이션 구성은 표면 마운트 및 매입형 조명 구성에 대한 UL1598 테스트 절차에 제공된 지침을 기반으로 합니다. 자연 대류 및 온도 분포를 시뮬레이션하려면 공기 체적 내에 테스트 벽에 잠기도록 하십시오. 원하는 수준의 물리적 테스트 충실도에 따라 테스트 상자를 생성하는 몇 가지 방법이 있습니다. 벽 테스트 상자 모형의 상세 정보 수준에 따라 벽으로 전도되는 열의 양이 결정됩니다.

표면 벽 조명

해석 영역은 테스트 설비의 구성에 따라 생성되어야 합니다. 각 구성에 대해 설비 주변의 공기 체적을 생성하여 자연 대류 및 열 전달로 인한 공기 이동을 시뮬레이션합니다.

다음 세 가지 방법으로 표면 벽 조명을 시뮬레이션할 수 있습니다.

단열 벽

단열(절연) 벽에 직접 설비를 부착합니다. 벽을 통해 열이 전도되지 않기 때문에 이 접근 방식은 열이 자연 대류를 통해서만 제거되는 "최악의" 상황을 시뮬레이션합니다. 이 구성을 사용하면 비교 연구를 위한 설계 옵션을 빠르게 시뮬레이션할 수 있습니다.

배선용 상자 또는 조명 마운팅 브래킷과 같은 세부 항목은 결과에 거의 영향을 미치지 않고 메쉬 크기 및 실행 시간만 늘리므로 포함하지 마십시오.

주: 공기는 아래쪽에서 들어오고 위쪽으로 나갑니다. 이상적인 흐름 프로파일 및 문제 해결에 대한 자세한 정보...

단순화된 테스트 상자 구성

이 구성을 사용하면 열이 설비에서 전도되어 주변 공기로 대류될 수 있습니다. 이 설정은 실제 설치를 복제하지 않지만, 벽의 알 수 없는 열 싱크 성능을 제거하고 온도 조절실 내부의 UL 열 테스트 전략을 모방합니다.

벽 및 설비 주변의 공기 체적은 다음 치수를 연장합니다.

UL 지정 테스트 상자 구성

UL 테스트 설정은 경목 구성과 동일한 치수를 사용하지만 솔리드 목재 기준 대신 UL 테스트 상자를 사용합니다. 이 테스트 구성을 사용하여 실제 테스트를 매우 유사하게 모방할 수 있습니다.

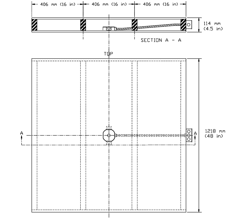
UL 1598 사양에 지정된 대로 벽 테스트 설비를 생성합니다.

CAD에서 팔각형 배선용 상자를 단순화해서 모든 판금 세부 항목을 제거합니다.

공기 체적으로 테스트 설비를 감쌉니다. 테스트 설비 주변의 공기 체적은 다음 치수를 연장합니다.

간접 벽 조명

해석 영역은 테스트 설비의 구성에 따라 생성되어야 합니다. 각 구성에 대해 설비 주변의 공기 체적을 생성하여 자연 대류 및 열 전달로 인한 공기 이동을 시뮬레이션합니다.

다음 두 가지 방법으로 간접 벽 조명을 시뮬레이션할 수 있습니다.

단순화된 테스트 상자 구성

이 구성을 사용하면 설비에서 솔리드 공기로 열을 대류할 수 있습니다. 이 설정은 실제 설치를 복제하지 않지만, 벽의 알 수 없는 열 싱크 성능을 제거하고 온도 조절실 내부의 UL 열 테스트 전략을 모방합니다.

벽 및 설비 주변의 공기 체적은 다음 치수를 연장합니다.

UL 지정 테스트 상자 구성

동일한 치수를 사용하여 UL 테스트 설정을 경목 구성으로 시뮬레이션합니다. 이 테스트 구성을 사용하여 실제 테스트를 매우 유사하게 모방할 수 있습니다. 경목 기준 대신, UL 1598에 정의된 대로 UL 테스트 상자를 사용하십시오.

다음 이미지에서 D = 8.5인치(최소), F = 6인치(최소)입니다. (조명이 더 깊은 경우 F에 대해 더 큰 값을 사용하십시오) 위쪽 도면에는 평면도가 표시됩니다. 아래쪽 도면에는 측면도가 표시됩니다.

공기 체적으로 테스트 설비를 감쌉니다. 테스트 설비 주변의 공기 체적은 다음 치수를 연장합니다.

경계 조건

참조: UL 1598

유닛 1 |전구 |천장 장착형