현재 모델의 실시간 렌더링을 위해 Twinmotion에 액세스합니다.
상황별 리본에서 모양 편집 중에 고도가 측정되는 방법을 설정합니다. 편집 시 커서 근처에 고도가 표시되므로 더욱 쉽고 정확하게 편집할 수 있습니다.
뷰 리스트에서 직접 시트의 현재 뷰를 교환합니다.
시트 배치 도구를 사용하면 뷰를 배치한 후 시트에서 뷰를 재구성할 수 있습니다.
지원 연관은 새로 작성된 해석 요소와 겹치는 물리적 요소를 식별하고 사용자가 추가로 클릭하지 않아도 요소 간의 연관을 작성합니다.
곡선 해석 패널을 사용하여 물리적 요소를 나타낼 수 있습니다. 호, 타원 또는 두 요소의 조합을 작성 및 편집하여 곡선 물리적 요소 또는 요소 그룹을 나타낼 수 있습니다.
이 도구를 사용하면 작업 기준면에 대한 투영을 그려 해석 패널을 정의할 수 있습니다.
요청 시 구성 가능한 규칙을 사용하여 해석 모델에서 연결된 실제 모델을 자동으로 작성합니다.
보강 철근 세트가 확장되는 방향을 선택하려면 마우스 오른쪽 버튼 클릭 메뉴에서 반전 옵션을 사용합니다.
독일, 오스트리아, 스위스에 대한 구조 컨텐츠가 추가되었습니다.
커뮤니티 아이디어: 간격으로 분할 명령을 다음 MEP 요소에 사용할 수 있습니다.
부품 배치 시 Revit은 가능하면 일치하는 커넥터로 부품의 방향을 자동으로 지정합니다.
Dynamo Core 2.16은 향상된 그래프 탐색 및 관리, 새로운 형상 노드 및 기본 PolyCurve 지원 등을 제공합니다.
미국식 측량 피트를 사용하여 파일을 가져오거나 링크하는 경우 이제 단위가 자동으로 탐지됩니다.
좌표가 매우 큰 요소가 저널 파일에 나열됩니다.
커뮤니티 아이디어: 검색 기능이 붙여넣기 대화상자에 추가되었습니다.
하드웨어 설정 검사는 하드웨어가 하드웨어 가속에 대한 Revit 시스템 요구사항을 충족하는지 직접 확인합니다.
커뮤니티 아이디어: 룸, 면적 또는 공간 태그가 경계 밖으로 이동되면 태그 지시선이 자동으로 사용됩니다.
커뮤니티 아이디어: 뷰 참조를 배치하면 상세 번호와 시트 번호가 대상 뷰 매개변수의 끝에 추가됩니다.
커뮤니티 아이디어: 이제 상단 및 하단 코어 입면도를 보고하는 바닥 태그의 레이블이 건축 바닥 요소와 함께 작동합니다.
이제 이전 릴리즈에서보다 더 많은 요소/카테고리에서 모든 인스턴스(Instance) 선택을 사용할 수 있습니다.
커뮤니티 아이디어: 시트를 여러 개 선택할 때 시트 편집 버튼의 수정기호가 사용 가능한 상태로 유지됩니다.
철골 연결에 사용할 SqlLocalDB의 버전을 수동으로 구성할 수 있습니다.
이제 태그의 레이블이 요소의 구조적 용도 매개변수를 보고할 수 있습니다.
커뮤니티 아이디어: 시간을 절약하고 필요한 부분만 게시하려면 링크 없이 호스트 모델만 게시할 수 있습니다.
공동작업자가 전체 모델에 액세스하지 않고도 작업을 완료할 수 있도록 모델의 일부를 공동작업자와 공유할 수 있습니다.
PDF 내보내기 및 인쇄 세트의 뷰 및 시트 순서를 조정합니다.
커뮤니티 아이디어: 이제 3D 뷰에서 측정 도구를 사용할 수 있습니다. 선택한 두 점 또는 체인을 따라 선택한 점 사이를 측정합니다.
성능을 개선하기 위해 다양한 영역에서 여러 가지 사항이 변경되었습니다.
해석 모델을 제어하고 모든 구조 실제 모델 형상의 컨텍스트에서 정확하게 작성할 수 있습니다.
요청 시 구성 가능한 규칙을 사용하여 연결된 해석 모델을 자동으로 작성합니다.
라이브러리 기반 연결 설계 자동화를 사용하면 설계 의도를 더욱 빠르게 모델링하고 구조 엔지니어링 및 제작 규칙을 포함하여 반복 작업을 줄일 수 있습니다.
소스 호스트에서 대상 호스트로 모양 기반 보강 철근을 복사하고 조정합니다. 철근은 보강 철근 구속조건을 일치시켜 조정됩니다.
전기 엔지니어는 실제 전기 모델 요소를 작성하지 않고도 건물 전력 요구사항을 예측하고 예비 개념 배전 시스템을 정의할 수 있으므로 최소한의 모델링으로 개념 해석과 초기 장비 크기 조정을 수행할 수 있습니다.
커뮤니티 아이디어: 생산성을 높이기 위해 배관, 덕트, 전선관, 케이블 트레이, 와이어 및 제작 부품 등의 MEP 요소는 철거할 때 시스템에 연결 및 지정된 상태로 유지됩니다.
제작 데이터 관리자(FDM)는 공동작업자가 MEP 제작 컨텐츠를 공유, 관리 및 빌드하여 Revit 사용자에게 제공할 수 있도록 지원하는 클라우드 호스트 서비스입니다.
FormIt과 Revit 간의 새로운 링크 워크플로우를 통해 설계를 탐색하고 반복합니다.
CAD 파일 링크/가져오기를 지원하기 위해 여러 기능이 향상되었습니다.
이제 일람표 도구가 시트별로 필터링하는 기능을 지원합니다.
커뮤니티 아이디어: 여러 요소에 동일한 태그를 지정할 수 있습니다. 태그를 배치하는 동안 또는 기존 태그에 호스트(지시선)를 더 추가하는 데 호스트 추가/제거 옵션을 사용합니다.
뷰의 탐색 성능을 개선하기 위해 새로운 컨트롤이 추가되었습니다.
작업 기준면 기반 패밀리에서 요소를 배치할 때 마지막으로 사용한 옵션이 기본 배치 옵션으로 저장됩니다.
커뮤니티 아이디어: 3D 뷰의 모든 변위된 요소에 태그를 지정합니다.
내포된 패밀리 및 공유 패밀리에서 요소를 선택하면 임시 치수가 자동으로 표시됩니다.
커뮤니티 아이디어: 2D 뷰에서 요소를 변위합니다.
등고선 레이블은 모든 방향에서 "읽기 가능으로 유지"됩니다.
뷰 내에서 시간 및 인공 조명 옵션을 보다 쉽게 제어할 수 있습니다.
태그 지정이 가능한 카테고리 리스트가 확장되어 설계를 보다 완벽하게 문서화할 수 있습니다.
프로젝트 탐색기 아이콘은 뷰가 시트에 있는지 여부를 나타냅니다.
새로운 기능을 이용하면 모양 편집 바닥의 접기 선 및 분할선을 보다 쉽게 제어할 수 있습니다. 자동으로 생성된 접기 선 및 분할선을 사용하여 모델에서 바닥 조건을 나타냅니다.
표준화된 연결의 즉시 사용 가능한 라이브러리를 사용하여 철골 연결에 대한 국가 표준을 기반으로 철골 연결의 배치를 자동화합니다.
AISC의 15번째 에디션에 따라 강철 모양 테이블이 추가되었습니다.
충돌을 방지하는 정밀한 모델링을 위해 막대 끝을 기준으로 커플러를 회전합니다.
커뮤니티 아이디어: 이제 문서를 보다 쉽게 읽고 이해할 수 있도록 보강 철근을 변위할 수 있습니다.
커뮤니티 아이디어: 여러 보강 철근 요소에 동일한 태그를 지정할 수 있습니다. 태그를 배치하는 동안 또는 기존 태그에 호스트(지시선)를 더 추가하는 데 호스트 추가/제거 옵션을 사용합니다.
Autodesk Docs 또는 Autodesk Construction Cloud 뷰어를 사용하여 3D 보강 철근 뷰를 쉽게 게시하고 열어 모델의 3D 보강 철근 상세정보 또는 뷰를 조정, 검사 및 공유할 수 있습니다.
3D 뷰의 상세 수준이 높음으로 설정된 경우 보강 철근은 솔리드로 표시됩니다.
프로젝트의 콘크리트 요소에 대한 콘크리트 피복 지정을 확인하고 보고하여 고품질 모델 및 문서를 제공합니다.
커뮤니티 아이디어: 요소를 모델링하는 동안 링크된 모델의 보강 철근과 충돌이 발생하지 않도록 합니다.
이제 구조적 용도 값을 비내력벽으로 변경하여 공간을 정의하고 나누며, 자체 중량을 제외한 수직 부하를 지지하지 않는 구조 벽을 작성할 수 있습니다.
소스 호스트에서 대상 호스트로 프리폼 보강 철근을 복사하고 조정합니다. 철근은 보강 철근 구속조건을 일치시켜 조정됩니다.
캔버스 내 컨트롤을 사용하여 제작 덕트 및 배관에 대한 입면도를 변경하고 부속을 반전할 수 있습니다.
커뮤니티 아이디어: 기계 제어 장치 및 위생배관 장비의 새 MEP 카테고리를 사용하면 뷰 및 시트에서 요소 가시성 및 모양을 보다 세부적으로 제어할 수 있습니다.
커뮤니티 아이디어: 생산성을 높이기 위해 패밀리 편집기에서 작업하는 동안 면 또는 작업 기준면에서 MEP 커넥터의 호스트를 변경할 수 있습니다.
Dynamo 플레이어 사용자 인터페이스가 현대화되었으며 몇 가지 유용한 사용 편의성 개선 사항이 추가되었습니다.
Revit 2023에는 연구 작성 개선 사항, Dynamo의 제너레이티브 디자인 도구에 대한 새로운 옵션 및 Dynamo 플레이어와의 일관된 경험을 포함하여 Revit 내 제너레이티브 디자인에 대한 최신 업데이트가 통합되었습니다.
매개변수 서비스를 사용하면 Autodesk Construction Cloud를 사용하여 매개변수 라이브러리를 관리할 수 있습니다.
패밀리, 유형, 패밀리 및 유형과 같은 매개변수가 일람표의 조건부 형식에 사용할 수 있도록 활성화되었습니다.
4개의 기존 카테고리가 뷰에서 절단되도록 활성화되었습니다.
키 일람표를 사용하여 룸 및 영역에 매개변수 값을 지정하면 키를 제거해도 값이 유지됩니다.
커뮤니티 아이디어: 기준면 선택 옵션을 사용하여 뷰의 작업 기준면을 보다 신속하게 설정할 수 있도록 새 리본 버튼과 키보드 단축키가 추가되었습니다.
요소의 내보내기 매핑을 제어하는 IFC 매개변수는 기본적으로 요소 및 유형에 포함되어 있습니다. 내보내기 매핑 대화상자를 사용하여 내보내기에 사용되는 IFC 도면요소 및 미리 정의된 유형을 변경합니다.
뷰 참조를 선택할 때 리스트에서 특정 뷰를 검색할 수 있습니다.
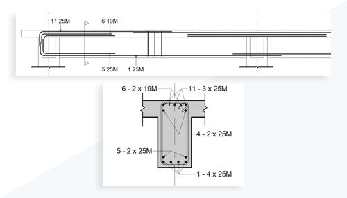
최신 모양 코드를 사용하여 콘크리트 구조를 강화합니다.
커뮤니티 아이디어: 생산성을 향상하기 위해 회로 번호 특성이 전기 장비 카테고리에 추가되었습니다.
커뮤니티 아이디어: 방향 패밀리를 작성할 때 생산성을 개선하기 위해 이제 일반 주석의 방향이 각 뷰에서 일관됩니다.
커뮤니티 아이디어: 높이 태그가 해당 값을 보고하는 높이 기준점을 설정할 수 있습니다.
커뮤니티 아이디어: MEP 요소의 입면도 특성이 업데이트되었으며 설계 및 제작 요소의 일관성을 개선하기 위해 새로운 특성이 추가되었습니다.
에너지 해석 모델의 정확성, 정밀도 및 성능이 향상되었습니다.
에너지 해석 모델의 정확성과 신뢰성을 높이기 위해 이제 하나의 큰 개구부 표면이 커튼월에 대해 작성됩니다.
Revit 홈을 사용하면 모델을 열지 않고도 클라우드 작업 공유 모델에서 요소를 취소할 수 있습니다.
커뮤니티 아이디어: Revit 홈을 사용하여 클라우드 모델의 이전 버전을 열거나 복원하는 경우 이후 버전이 유지됩니다.
이제 상세 항목을 가져오는 대신, 채워진 영역을 3D 패밀리에서 직접 작성할 수 있습니다.
뷰 필터 개선 사항을 사용하여 보다 신속하게 필터를 작성하고 뷰에 적용할 수 있습니다.
커뮤니티 아이디어: 재료를 복제할 때 자산을 복제하거나 공유 자산을 사용하도록 선택할 수 있습니다.
커뮤니티 아이디어: "케이스워크" 카테고리에 지정된 패밀리는 해당 형상을 결합시킬 수 있습니다.
이제 재질 텍스처 및 그림에서 서버에 저장된 이미지를 사용할 수 있습니다.
모델 그룹 및 RVT 링크에는 유형 및 인스턴스 Identity 데이터 매개변수가 포함됩니다.
Issues 애드인에 새로운 개요 패널이 추가되면서 추가적인 Autodesk Construction Cloud 데이터가 Issues 애드인 내에 표시됩니다.